Property
Account |
| Property ID: | 277177 | Abbreviated Legal Description: | Section 9 Township 8 Range 29 Quarter NW Plat Subdivision CREEKSTONE PLANNING UNIT 1, 3/7/2002, PHASE 3 & 4, BLOCK 6, LOT 5, |
| Parcel # / Geo ID: | 109892050006005 | Agent Code: | |
| Type: | Real | | |
| Tax Area: | K1 - K1 | Land Use Code | 11 |
| Open Space: | N | DFL | N |
| Historic Property: | N | Remodel Property: | N |
| Multi-Family Redevelopment: | N | | |
| Township: | 08 | Section: | 09 |
| Range: | 29 | Legal Acres: | 0.1725 |
Location |
| Address: | 1311 S JEFFERSON PL KENNEWICK, WA 99338 | Mapsco: | |
| Neighborhood: | 11140 - Creekstone/Panoramic Heights | Map ID: | |
| Neighborhood CD: | 11140 |
Owner |
| Name: | JAMESON ANDREW M & WHEELER JESSICA JANE | Owner ID: | 461494 |
| Mailing Address: | 1311 S JEFFERSON PL KENNEWICK, WA 99338 | % Ownership: | 100.0000000000% |
| | | Exemptions: | |
Pay Tax Due
Select the appropriate checkbox next to the year to be paid. Multiple years may be selected.
*Convenience Fee not included
Taxes and Assessment Details
Property Tax Information as of
04/04/2026
Click on "Statement Details" to expand or collapse a tax statement.
* Please enter a valid date ** Please enter a valid date *
Statement Details |
| 2026 | 56471 | CITK - CITY OF KENNEWICK | $256.82 | $256.82 | $0.00 | $0.00 | $0.00 | $513.64 |
| 2026 | 56471 | CTYGEN - COUNTY BENTON | $153.51 | $153.49 | $0.00 | $0.00 | $0.00 | $307.00 |
| 2026 | 56471 | HOSK - KENNEWICK HOSPITAL | $15.91 | $15.90 | $0.00 | $0.00 | $0.00 | $31.81 |
| 2026 | 56471 | LIB - MID-COLUMBIA LIBRARY | $46.91 | $46.91 | $0.00 | $0.00 | $0.00 | $93.82 |
| 2026 | 56471 | PRTK - PORT OF KENNEWICK | $39.59 | $39.59 | $0.00 | $0.00 | $0.00 | $79.18 |
| 2026 | 56471 | SCH17 - KENNEWICK SD 17 | $542.90 | $542.87 | $0.00 | $0.00 | $0.00 | $1085.77 |
| 2026 | 56471 | STATE - STATE SCHOOL | $435.22 | $435.22 | $0.00 | $0.00 | $0.00 | $870.44 |
| 2026 | 56471 | BCD - BENTON CONSERVATION DISTRICT | $2.51 | $2.51 | $0.00 | $0.00 | $0.00 | $5.02 |
| 2026 | 56471 | HORT - HORTICULTURAL PEST AND DISEASE CONTROL | $0.75 | $0.75 | $0.00 | $0.00 | $0.00 | $1.50 |
| 2026 | 56471 | MOSBEN - MOSQUITO | $18.31 | $18.30 | $0.00 | $0.00 | $0.00 | $36.61 |
| 2026 | 56471 | WEDBEN - NOXIOUS WEED CONTROL BOARD | $2.50 | $2.50 | $0.00 | $0.00 | $0.00 | $5.00 |
| 2026 | 56471 | TOTAL: | $1514.93 | $1514.86 | $0.00 | $0.00 | $0.00 | $3029.79 |
|
| 2026 | 56471 | $1514.93 | $1514.86 | $0.00 | $0.00 | $0.00 | $3029.79 |
Statement Details |
| 2025 | 56692 | CITK - CITY OF KENNEWICK | $273.81 | $273.80 | $0.00 | $0.00 | $547.61 | $0.00 |
| 2025 | 56692 | CTYGEN - COUNTY BENTON | $164.80 | $164.78 | $0.00 | $0.00 | $329.58 | $0.00 |
| 2025 | 56692 | HOSK - KENNEWICK HOSPITAL | $16.77 | $16.76 | $0.00 | $0.00 | $33.53 | $0.00 |
| 2025 | 56692 | LIB - MID-COLUMBIA LIBRARY | $49.96 | $49.95 | $0.00 | $0.00 | $99.91 | $0.00 |
| 2025 | 56692 | PRTK - PORT OF KENNEWICK | $42.18 | $42.18 | $0.00 | $0.00 | $84.36 | $0.00 |
| 2025 | 56692 | SCH17 - KENNEWICK SD 17 | $636.53 | $636.52 | $0.00 | $0.00 | $1273.05 | $0.00 |
| 2025 | 56692 | STATE - STATE SCHOOL | $475.97 | $475.96 | $0.00 | $0.00 | $951.93 | $0.00 |
| 2025 | 56692 | BCD - BENTON CONSERVATION DISTRICT | $2.51 | $2.51 | $0.00 | $0.00 | $5.02 | $0.00 |
| 2025 | 56692 | HORT - HORTICULTURAL PEST AND DISEASE CONTROL | $0.75 | $0.75 | $0.00 | $0.00 | $1.50 | $0.00 |
| 2025 | 56692 | MOSBEN - MOSQUITO | $18.48 | $18.47 | $0.00 | $0.00 | $36.95 | $0.00 |
| 2025 | 56692 | WEDBEN - NOXIOUS WEED CONTROL BOARD | $2.50 | $2.50 | $0.00 | $0.00 | $5.00 | $0.00 |
| 2025 | 56692 | TOTAL: | $1684.26 | $1684.18 | $0.00 | $0.00 | $3368.44 | $0.00 |
|
| 2025 | 56692 | $1684.26 | $1684.18 | $0.00 | $0.00 | $3368.44 | $0.00 |
Values
| (+) Improvement Homesite Value: | + | $0 | |
| (+) Improvement Non-Homesite Value: | + | $229,820 | |
| (+) Land Homesite Value: | + | $0 | |
| (+) Land Non-Homesite Value: | + | $70,000 | |
| (+) Curr Use (HS): | + | $0 | $0 |
| (+) Curr Use (NHS): | + | $0 | $0 |
| | | -------------------------- | |
| (=) Market Value: | = | $299,820 | |
| (–) Productivity Loss: | – | $0 | |
| | | -------------------------- | |
| (=) Subtotal: | = | $299,820 | |
| (+) Senior Appraised Value: | + | $0 | |
| (+) Non-Senior Appraised Value: | + | $299,820 | |
| | | -------------------------- | |
| (=) Total Appraised Value: | = | $299,820 | |
| (–) Senior Exemption Loss: | – | $0 | |
| (–) Exemption Loss: | – | $0 | |
| | | -------------------------- | |
| (=) Taxable Value: | = | $299,820 | |
Taxing Jurisdiction
| Owner: | JAMESON ANDREW M & WHEELER JESSICA JANE | | |
| % Ownership: | 100.0000000000% | | |
| Total Value: | $299,820 | | |
| Tax Area: | K1 - K1 |
| KENN | KENNEWICK GENERAL | 1.5492965023 | $299,820 | $299,820 | $464.51 | | |
| CNYHMNSVCS | COUNTY HUMAN SERVICES | 0.0250000001 | $299,820 | $299,820 | $7.50 | | |
| CNYVET | COUNTY VETERANS | 0.0112499999 | $299,820 | $299,820 | $3.37 | | |
| COUNTY | COUNTY | 0.9007089219 | $299,820 | $299,820 | $270.05 | | |
| KENNHOSP | KENNEWICK HOSPITAL | 0.0955738051 | $299,820 | $299,820 | $28.65 | | |
| MCLIB | MID-COLUMBIA LIBRARY | 0.2621490980 | $299,820 | $299,820 | $78.60 | | |
| PTKEN | PORT OF KENNEWICK | 0.2401125501 | $299,820 | $299,820 | $71.99 | | |
| SD17 | SCHOOL DIST 17 DEBT SERVICE | 1.3831384637 | $299,820 | $299,820 | $414.69 | | |
| SD17CP | SCHOOL DIST 17 CAPITAL PROJECTS | 0.3417638646 | $299,820 | $299,820 | $102.47 | | |
| SD17MO | SCHOOL DIST 17 ENRICHMENT | 0.0000000000 | $299,820 | $299,820 | $0.00 | | |
| STATE | STATE SCHOOL | 1.4169238836 | $299,820 | $299,820 | $424.82 | | |
| STATE2 | STATE SCHOOL PART 2 | 0.7571640106 | $299,820 | $299,820 | $227.01 | | |
| | Total Tax Rate: | 6.9830810999 | | | | | |
| | | | | Taxes w/Current Exemptions: | $2,093.66 | | |
| | | | | Taxes w/o Exemptions: | $2,093.66 | | |
Improvement / Building
| Improvement #1: | RESIDENTIAL BLDGS | State Code: | 520 | 1710.0 sqft | Value: | $229,820 |
| Exterior Wall: | Hardboard | Fireplace: | FIREPLACE | | Fixture Count: | Count | Foundation: | Crawl/Concrete Perimeter Piers | | Full Bathrooms: | Count | HVAC: | Central heat/cooling | | Number of Bedrooms: | Count | Roof Covering: | Comp Shingle |
|
| | Type | Description | Class CD | Sub Class CD | Year Built | Area |
| | MA | Main Area | 30 | | 2004 | 1710.0 |
| | ATTGAR | ATTGAR | 30 | | 2004 | 441.0 |
| | CovPatio | Covered Patio | 30 | | 2004 | 24.0 |
| | Patio | Patio | 30 | | 2004 | 120.0 |
Property Image
Land
| 1 | 9 | Homesite | 0.1700 | 7516.00 | 0.00 | 0.00 | 1.00 | $70,000 | $0 |
Roll Value History
| 2026 | N/A | N/A | N/A | N/A | N/A |
| 2025 | $329,740 | $70,000 | $0 | $399,740 | $399,740 |
| 2024 | $349,720 | $70,000 | $0 | $419,720 | $419,720 |
| 2023 | $309,750 | $70,000 | $0 | $379,750 | $379,750 |
| 2022 | $229,820 | $70,000 | $0 | $299,820 | $299,820 |
Deed and Sales History
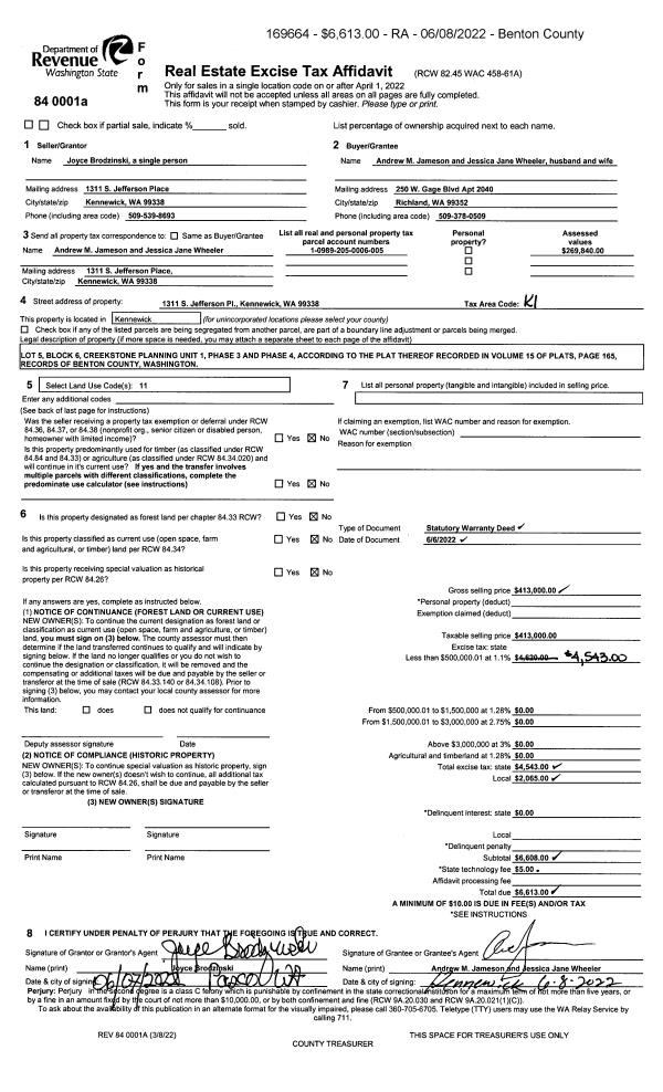
| 1 | 06/06/2022 | SWD | Statutory Warranty Deed | BRODZINSKI JOYCE | JAMESON ANDREW M & WHEELER JESSICA JANE | 2022-019258 | | $413,000.00 | 169664 | |
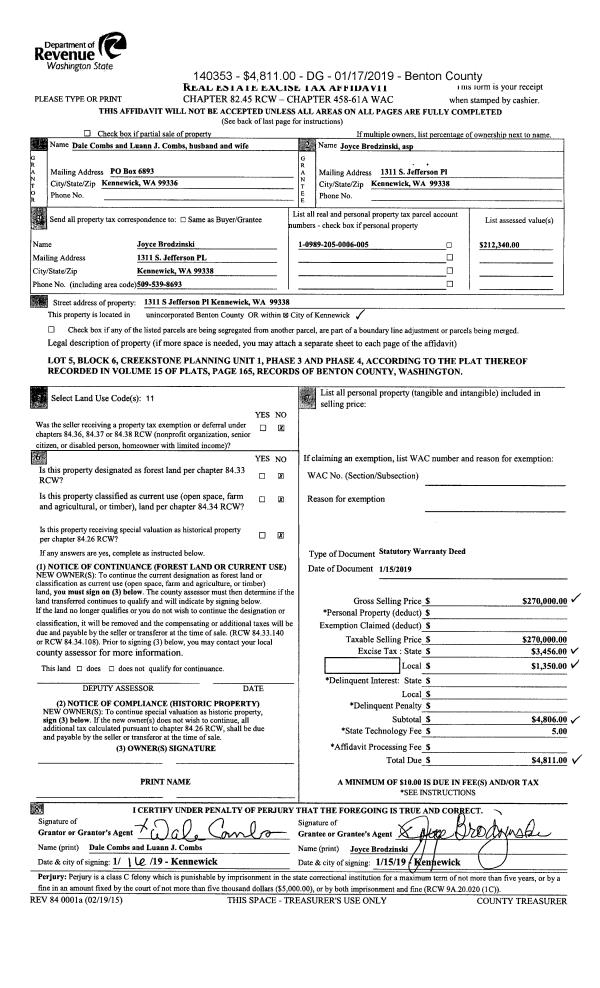
| 2 | 01/15/2019 | SWD | Statutory Warranty Deed | COMBS DALE & LUANN J | BRODZINSKI JOYCE | 2019-001440 | | $270,000.00 | 140353 | |
| 3 | 09/20/2011 | SWD | Statutory Warranty Deed | LARSON, ANDREW C | COMBS DALE & LUANN J | 2011-027633 | 11K04274 | $193,300.00 | 0 | 68027 |
| 4 | 10/16/2009 | SWD | Statutory Warranty Deed | SWANEY, MAUREEN M | LARSON ANDREW C | 2009-031619 | 09K04912 | $199,900.00 | 0 | 55712 |
| 5 | 01/23/2004 | SWD | Statutory Warranty Deed | TANNINEN CONSTRUCTION INC | SWANEY MAUREEN M | 2004-002658 | 04K00329 | $178,400.00 | 0 | 13027 |
| 6 | 06/12/2003 | SWD | Statutory Warranty Deed | NNP CREEKSTONE LLC | TANNINEN CONSTRUCTION INC | 2003-043716 | 03K05283 | $36,500.00 | 0 | 10367 |
Payout Agreement
| No payout information available.. |