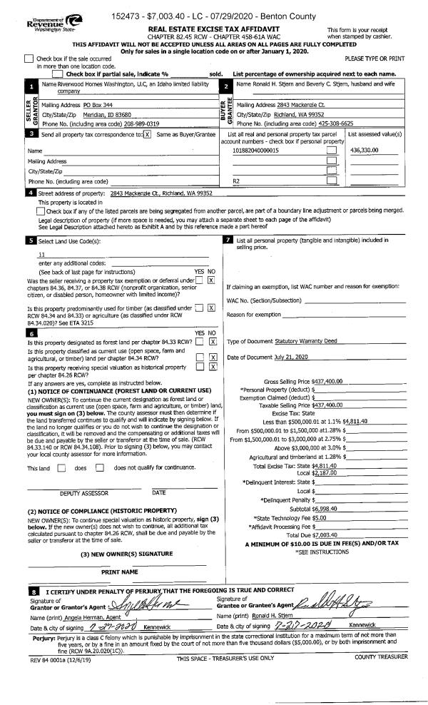
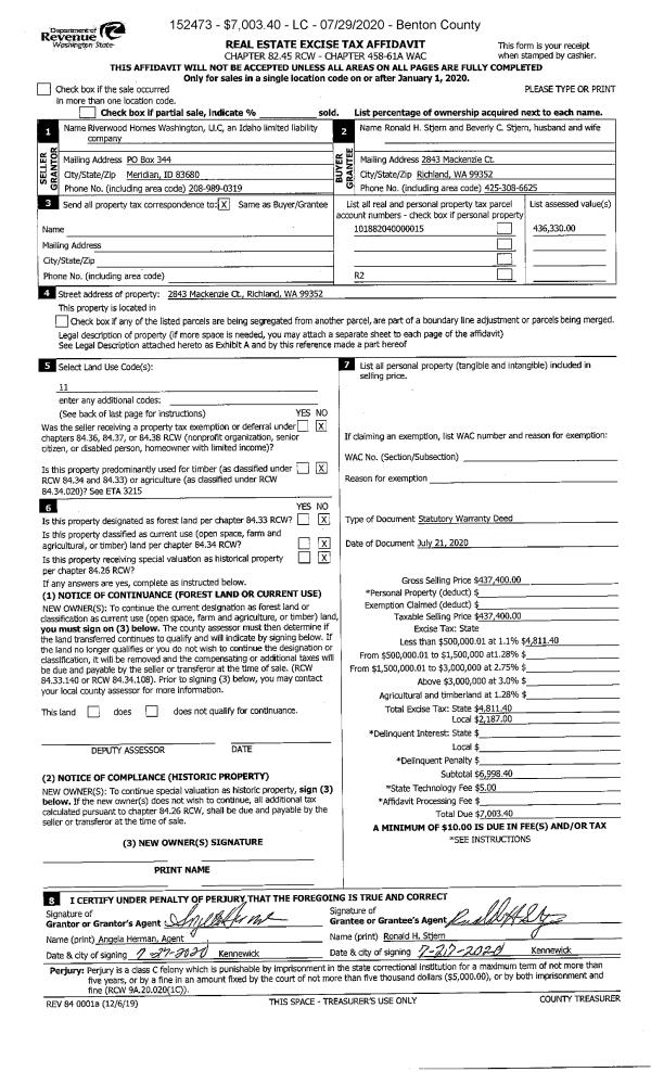
| 1 | 07/21/2020 | SWD | Statutory Warranty Deed | RIVERWOOD HOMES WASHINGTON LLC | STJERN RONALD H & BEVERLY C | 2020-027728 | | $437,400.00 | 152473 | |
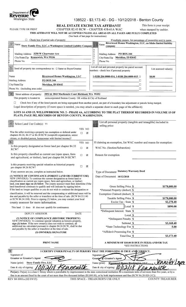
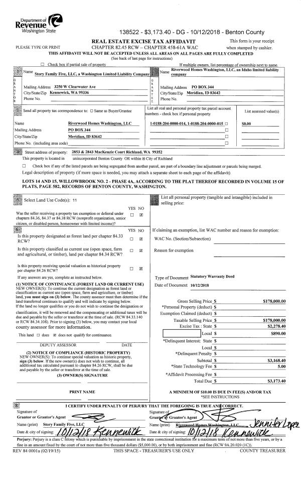
| 2 | 10/12/2018 | SWD | Statutory Warranty Deed | STORY FAMILY FIVE LLC | RIVERWOOD HOMES WASHINGTON LLC | 2018-030487 | | $178,000.00 | 138522 | |
|   | |
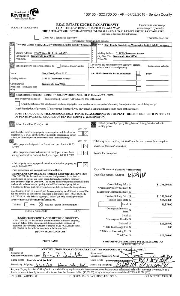
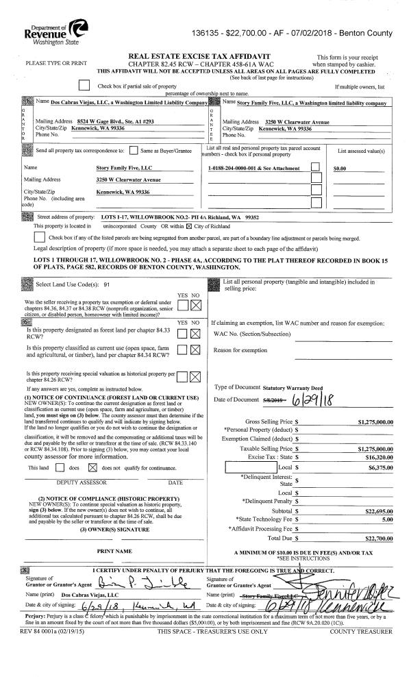
| 3 | 06/29/2018 | SWD | Statutory Warranty Deed | DOS CABRAS VIEJAS LLC | STORY FAMILY FIVE LLC | 2018-019224 | | $1,275,000.00 | 136135 | |
|   |
| 309432 | 2832 MACKENZIE CT
RICHLAND, WA 99352 | WILLOWBROOK NO. 2 PHASE 4A LOT 1 RECORDED IN VOLUME 15 OF PLATS AT PAGE 582, RECORDS OF BENTON COUNTY, WASHINGTON. AF#2018-008959, 03/30/2018. |
| 309433 | 2838 MACKENZIE CT
RICHLAND, WA 99352 | WILLOWBROOK NO. 2 PHASE 4A LOT 2 RECORDED IN VOLUME 15 OF PLATS AT PAGE 582, RECORDS OF BENTON COUNTY, WASHINGTON. AF#2018-008959, 03/30/2018. |
| 309434 | 2844 MACKENZIE CT
RICHLAND, WA 99352 | WILLOWBROOK NO. 2 PHASE 4A LOT 3 RECORDED IN VOLUME 15 OF PLATS AT PAGE 582, RECORDS OF BENTON COUNTY, WASHINGTON. AF#2018-008959, 03/30/2018. |
| 309435 | 2850 MACKENZIE CT
RICHLAND, WA 99352 | WILLOWBROOK NO. 2 PHASE 4A LOT 4 RECORDED IN VOLUME 15 OF PLATS AT PAGE 582, RECORDS OF BENTON COUNTY, WASHINGTON. AF#2018-008959, 03/30/2018. |
| 309436 | 2856 MACKENZIE CT
RICHLAND, WA 99352 | WILLOWBROOK NO. 2 PHASE 4A LOT 5 RECORDED IN VOLUME 15 OF PLATS AT PAGE 582, RECORDS OF BENTON COUNTY, WASHINGTON. AF#2018-008959, 03/30/2018. |
| 309437 | 2862 MACKENZIE CT
RICHLAND, WA 99352 | WILLOWBROOK NO. 2 PHASE 4A LOT 6 RECORDED IN VOLUME 15 OF PLATS AT PAGE 582, RECORDS OF BENTON COUNTY, WASHINGTON. AF#2018-008959, 03/30/2018. |
| 309438 | 2868 MACKENZIE CT
RICHLAND, WA 99352 | WILLOWBROOK NO. 2 PHASE 4A LOT 7 RECORDED IN VOLUME 15 OF PLATS AT PAGE 582, RECORDS OF BENTON COUNTY, WASHINGTON. AF#2018-008959, 03/30/2018. |
| 309439 | 2874 MACKENZIE CT
RICHLAND, WA 99352 | WILLOWBROOK NO. 2 PHASE 4A LOT 8 RECORDED IN VOLUME 15 OF PLATS AT PAGE 582, RECORDS OF BENTON COUNTY, WASHINGTON. AF#2018-008959, 03/30/2018. |
| 309440 | 2880 MACKENZIE CT
RICHLAND, WA 99352 | WILLOWBROOK NO. 2 PHASE 4A LOT 9 RECORDED IN VOLUME 15 OF PLATS AT PAGE 582, RECORDS OF BENTON COUNTY, WASHINGTON. AF#2018-008959, 03/30/2018. |
| 309441 | 2883 MACKENZIE CT
RICHLAND, WA 99352 | WILLOWBROOK NO. 2 PHASE 4A LOT 10 RECORDED IN VOLUME 15 OF PLATS AT PAGE 582, RECORDS OF BENTON COUNTY, WASHINGTON. AF#2018-008959, 03/30/2018. |
| 309442 | 2879 MACKENZIE CT
RICHLAND, WA 99352 | WILLOWBROOK NO. 2 PHASE 4A LOT 11 RECORDED IN VOLUME 15 OF PLATS AT PAGE 582, RECORDS OF BENTON COUNTY, WASHINGTON. AF#2018-008959, 03/30/2018. |
| 309443 | 2873 MACKENZIE CT
RICHLAND, WA 99352 | WILLOWBROOK NO. 2 PHASE 4A LOT 12 RECORDED IN VOLUME 15 OF PLATS AT PAGE 582, RECORDS OF BENTON COUNTY, WASHINGTON. AF#2018-008959, 03/30/2018. |
| 309444 | 2865 MACKENZIE CT
RICHLAND, WA 99352 | WILLOWBROOK NO. 2 PHASE 4A LOT 13 RECORDED IN VOLUME 15 OF PLATS AT PAGE 582, RECORDS OF BENTON COUNTY, WASHINGTON. AF#2018-008959, 03/30/2018. |
| 309445 | 2853 MACKENZIE CT
RICHLAND, WA 99352 | WILLOWBROOK NO. 2 PHASE 4A LOT 14 RECORDED IN VOLUME 15 OF PLATS AT PAGE 582, RECORDS OF BENTON COUNTY, WASHINGTON. AF#2018-008959, 03/30/2018. |
| 309447 | 2831 MACKENZIE CT
RICHLAND, WA 99352 | WILLOWBROOK NO. 2 PHASE 4A LOT 16 RECORDED IN VOLUME 15 OF PLATS AT PAGE 582, RECORDS OF BENTON COUNTY, WASHINGTON. AF#2018-008959, 03/30/2018. |
| 309448 | 2831 BELLA CT
RICHLAND, WA 99352 | WILLOWBROOK NO. 2 PHASE 4A LOT 17 RECORDED IN VOLUME 15 OF PLATS AT PAGE 582, RECORDS OF BENTON COUNTY, WASHINGTON. AF#2018-008959, 03/30/2018. |
|
| 4 | 06/25/2018 | SWD | Statutory Warranty Deed | RODEN JOHN P & JEAN D | DOS CABRAS VIEJAS LLC | 2018-019223 | | $1,345,800.00 | 136134 | |
|   |
| 309152 | UNDETERMINED
RICHLAND, WA 99352 | THAT PORTION OF TRACT J, AND ALL OF TRACT G, PLAT OF WILLOWBROOK NUMBER 1, ACCORDING TO THE PLAT THEREOF RECORDED IN VOLUME 14 OF PLATS, PAGE 13, RECORDS OF BENTON COUNTY, WASHINGTON AND THAT PORTION OF THE NORTHEAST QUARTER OF THE SOUTHWEST QUARTER OF TH |
| 309432 | 2832 MACKENZIE CT
RICHLAND, WA 99352 | WILLOWBROOK NO. 2 PHASE 4A LOT 1 RECORDED IN VOLUME 15 OF PLATS AT PAGE 582, RECORDS OF BENTON COUNTY, WASHINGTON. AF#2018-008959, 03/30/2018. |
| 309433 | 2838 MACKENZIE CT
RICHLAND, WA 99352 | WILLOWBROOK NO. 2 PHASE 4A LOT 2 RECORDED IN VOLUME 15 OF PLATS AT PAGE 582, RECORDS OF BENTON COUNTY, WASHINGTON. AF#2018-008959, 03/30/2018. |
| 309434 | 2844 MACKENZIE CT
RICHLAND, WA 99352 | WILLOWBROOK NO. 2 PHASE 4A LOT 3 RECORDED IN VOLUME 15 OF PLATS AT PAGE 582, RECORDS OF BENTON COUNTY, WASHINGTON. AF#2018-008959, 03/30/2018. |
| 309435 | 2850 MACKENZIE CT
RICHLAND, WA 99352 | WILLOWBROOK NO. 2 PHASE 4A LOT 4 RECORDED IN VOLUME 15 OF PLATS AT PAGE 582, RECORDS OF BENTON COUNTY, WASHINGTON. AF#2018-008959, 03/30/2018. |
| 309436 | 2856 MACKENZIE CT
RICHLAND, WA 99352 | WILLOWBROOK NO. 2 PHASE 4A LOT 5 RECORDED IN VOLUME 15 OF PLATS AT PAGE 582, RECORDS OF BENTON COUNTY, WASHINGTON. AF#2018-008959, 03/30/2018. |
| 309437 | 2862 MACKENZIE CT
RICHLAND, WA 99352 | WILLOWBROOK NO. 2 PHASE 4A LOT 6 RECORDED IN VOLUME 15 OF PLATS AT PAGE 582, RECORDS OF BENTON COUNTY, WASHINGTON. AF#2018-008959, 03/30/2018. |
| 309438 | 2868 MACKENZIE CT
RICHLAND, WA 99352 | WILLOWBROOK NO. 2 PHASE 4A LOT 7 RECORDED IN VOLUME 15 OF PLATS AT PAGE 582, RECORDS OF BENTON COUNTY, WASHINGTON. AF#2018-008959, 03/30/2018. |
| 309439 | 2874 MACKENZIE CT
RICHLAND, WA 99352 | WILLOWBROOK NO. 2 PHASE 4A LOT 8 RECORDED IN VOLUME 15 OF PLATS AT PAGE 582, RECORDS OF BENTON COUNTY, WASHINGTON. AF#2018-008959, 03/30/2018. |
| 309440 | 2880 MACKENZIE CT
RICHLAND, WA 99352 | WILLOWBROOK NO. 2 PHASE 4A LOT 9 RECORDED IN VOLUME 15 OF PLATS AT PAGE 582, RECORDS OF BENTON COUNTY, WASHINGTON. AF#2018-008959, 03/30/2018. |
| 309441 | 2883 MACKENZIE CT
RICHLAND, WA 99352 | WILLOWBROOK NO. 2 PHASE 4A LOT 10 RECORDED IN VOLUME 15 OF PLATS AT PAGE 582, RECORDS OF BENTON COUNTY, WASHINGTON. AF#2018-008959, 03/30/2018. |
| 309442 | 2879 MACKENZIE CT
RICHLAND, WA 99352 | WILLOWBROOK NO. 2 PHASE 4A LOT 11 RECORDED IN VOLUME 15 OF PLATS AT PAGE 582, RECORDS OF BENTON COUNTY, WASHINGTON. AF#2018-008959, 03/30/2018. |
| 309443 | 2873 MACKENZIE CT
RICHLAND, WA 99352 | WILLOWBROOK NO. 2 PHASE 4A LOT 12 RECORDED IN VOLUME 15 OF PLATS AT PAGE 582, RECORDS OF BENTON COUNTY, WASHINGTON. AF#2018-008959, 03/30/2018. |
| 309444 | 2865 MACKENZIE CT
RICHLAND, WA 99352 | WILLOWBROOK NO. 2 PHASE 4A LOT 13 RECORDED IN VOLUME 15 OF PLATS AT PAGE 582, RECORDS OF BENTON COUNTY, WASHINGTON. AF#2018-008959, 03/30/2018. |
| 309445 | 2853 MACKENZIE CT
RICHLAND, WA 99352 | WILLOWBROOK NO. 2 PHASE 4A LOT 14 RECORDED IN VOLUME 15 OF PLATS AT PAGE 582, RECORDS OF BENTON COUNTY, WASHINGTON. AF#2018-008959, 03/30/2018. |
| 309447 | 2831 MACKENZIE CT
RICHLAND, WA 99352 | WILLOWBROOK NO. 2 PHASE 4A LOT 16 RECORDED IN VOLUME 15 OF PLATS AT PAGE 582, RECORDS OF BENTON COUNTY, WASHINGTON. AF#2018-008959, 03/30/2018. |
| 309448 | 2831 BELLA CT
RICHLAND, WA 99352 | WILLOWBROOK NO. 2 PHASE 4A LOT 17 RECORDED IN VOLUME 15 OF PLATS AT PAGE 582, RECORDS OF BENTON COUNTY, WASHINGTON. AF#2018-008959, 03/30/2018. |
|