309785 XIONG YIJIA & YAO JUAN for Year 2024 - 2025

Click on a title bar to expand or collapse the information.

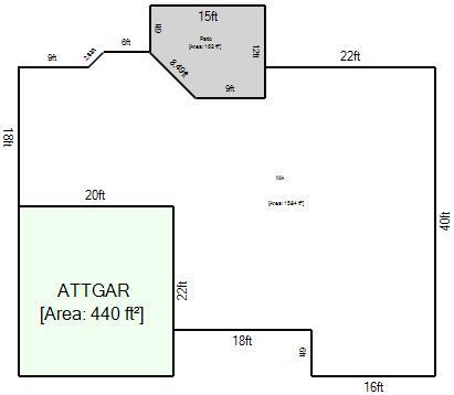
Property

Pay Tax Due

Taxes and Assessment Details

Values

Taxing Jurisdiction

Improvement / Building

Property Image

Land

Roll Value History

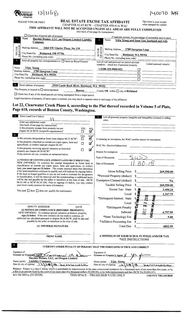
Deed and Sales History

Payout Agreement

Assessor Website          Treasurer Website          Mapping Website