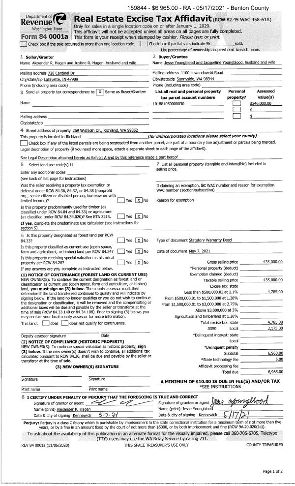
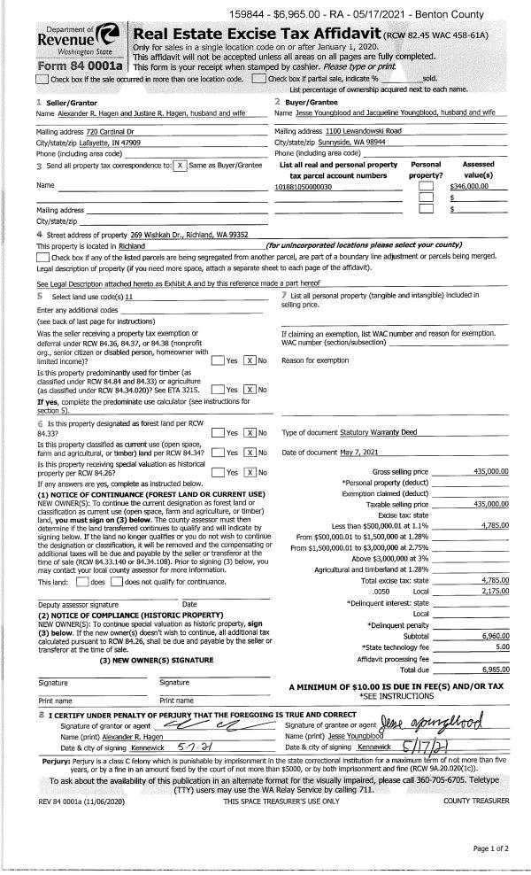
| 1 | 05/07/2021 | SWD | Statutory Warranty Deed | HAGEN ALEXANDER R & JUSTINE R | YOUNGBLOOD JESSE & JACQUELINE | 2021-023662 | | $435,000.00 | 159844 | |
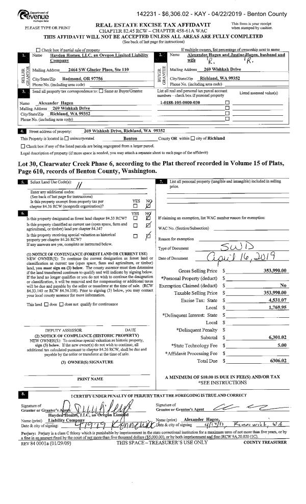
| 2 | 04/16/2019 | SWD | Statutory Warranty Deed | HAYDEN HOMES LLC | HAGEN ALEXANDER R & JUSTINE R | 2019-009869 | | $353,990.00 | 142231 | |
| 3 | 09/14/2018 | SWD | Statutory Warranty Deed | RICHLAND 132 LLC | HAYDEN HOMES LLC | 2018-027593 | | $820,500.00 | 137893 | |
|   | |