Property
Account |
| Property ID: | 313317 | Abbreviated Legal Description: | WESTERN RIDGE PHASE 1, LOT 17. RECORDED IN VOLUME 15 OF PLATS AT PAGE 685, RECORDS OF BENTON COUNTY, WASHINGTON. AF#2020-034593, 09/10/2020 |
| Parcel # / Geo ID: | 101973020000017 | Agent Code: | |
| Type: | Real | | |
| Tax Area: | W1 - W1 | Land Use Code | 11 |
| Open Space: | N | DFL | N |
| Historic Property: | N | Remodel Property: | N |
| Multi-Family Redevelopment: | N | | |
| Township: | 09 | Section: | 01 |
| Range: | 27 | Legal Acres: | 0.9000 |
Location |
| Address: | 1094 WAYLON DR WEST RICHLAND, WA 99353 | Mapsco: | |
| Neighborhood: | 15041 - Paradise Way Single Level | Map ID: | 0197-302 |
| Neighborhood CD: | 15041 |
Owner |
| Name: | MALLOW II JOHN SHERWIN & MALLOW ARNE | Owner ID: | 456534 |
| Mailing Address: | 1094 WAYLON DR WEST RICHLAND, WA 99353 | % Ownership: | 100.0000000000% |
| | | Exemptions: | |
Pay Tax Due
Select the appropriate checkbox next to the year to be paid. Multiple years may be selected.
*Convenience Fee not included
Taxes and Assessment Details
Property Tax Information as of
03/31/2026
Click on "Statement Details" to expand or collapse a tax statement.
* Please enter a valid date ** Please enter a valid date *
Statement Details |
| 2026 | 80727 | CITWR - CITY OF WEST RICHLAND | $392.60 | $392.59 | $0.00 | $0.00 | $0.00 | $785.19 |
| 2026 | 80727 | CTYGEN - COUNTY BENTON | $237.88 | $237.86 | $0.00 | $0.00 | $0.00 | $475.74 |
| 2026 | 80727 | FIR004 - FIRE DISTRICT #4 | $600.22 | $600.20 | $0.00 | $0.00 | $0.00 | $1200.42 |
| 2026 | 80727 | PRTK - PORT OF KENNEWICK | $61.36 | $61.35 | $0.00 | $0.00 | $0.00 | $122.71 |
| 2026 | 80727 | SCH400 - RICHLAND SD 400 | $1199.77 | $1199.75 | $0.00 | $0.00 | $0.00 | $2399.52 |
| 2026 | 80727 | STATE - STATE SCHOOL | $674.43 | $674.43 | $0.00 | $0.00 | $0.00 | $1348.86 |
| 2026 | 80727 | BCD - BENTON CONSERVATION DISTRICT | $2.55 | $2.54 | $0.00 | $0.00 | $0.00 | $5.09 |
| 2026 | 80727 | HORT - HORTICULTURAL PEST AND DISEASE CONTROL | $0.75 | $0.75 | $0.00 | $0.00 | $0.00 | $1.50 |
| 2026 | 80727 | MOSBEN - MOSQUITO | $20.02 | $20.02 | $0.00 | $0.00 | $0.00 | $40.04 |
| 2026 | 80727 | WEDBEN - NOXIOUS WEED CONTROL BOARD | $2.50 | $2.50 | $0.00 | $0.00 | $0.00 | $5.00 |
| 2026 | 80727 | TOTAL: | $3192.08 | $3191.99 | $0.00 | $0.00 | $0.00 | $6384.07 |
|
| 2026 | 80727 | $3192.08 | $3191.99 | $0.00 | $0.00 | $0.00 | $6384.07 |
Statement Details |
| 2025 | 81182 | CITWR - CITY OF WEST RICHLAND | $377.90 | $377.88 | $0.00 | $0.00 | $755.78 | $0.00 |
| 2025 | 81182 | CTYGEN - COUNTY BENTON | $222.59 | $222.58 | $0.00 | $0.00 | $445.17 | $0.00 |
| 2025 | 81182 | FIR004 - FIRE DISTRICT #4 | $558.75 | $558.75 | $0.00 | $0.00 | $1117.50 | $0.00 |
| 2025 | 81182 | PRTK - PORT OF KENNEWICK | $56.97 | $56.97 | $0.00 | $0.00 | $113.94 | $0.00 |
| 2025 | 81182 | SCH400 - RICHLAND SD 400 | $1121.53 | $1121.51 | $0.00 | $0.00 | $2243.04 | $0.00 |
| 2025 | 81182 | STATE - STATE SCHOOL | $642.89 | $642.88 | $0.00 | $0.00 | $1285.77 | $0.00 |
| 2025 | 81182 | BCD - BENTON CONSERVATION DISTRICT | $2.55 | $2.54 | $0.00 | $0.00 | $5.09 | $0.00 |
| 2025 | 81182 | HORT - HORTICULTURAL PEST AND DISEASE CONTROL | $0.75 | $0.75 | $0.00 | $0.00 | $1.50 | $0.00 |
| 2025 | 81182 | MOSBEN - MOSQUITO | $20.19 | $20.19 | $0.00 | $0.00 | $40.38 | $0.00 |
| 2025 | 81182 | WEDBEN - NOXIOUS WEED CONTROL BOARD | $2.50 | $2.50 | $0.00 | $0.00 | $5.00 | $0.00 |
| 2025 | 81182 | TOTAL: | $3006.62 | $3006.55 | $0.00 | $0.00 | $6013.17 | $0.00 |
|
| 2025 | 81182 | $3006.62 | $3006.55 | $0.00 | $0.00 | $6013.17 | $0.00 |
Values
| (+) Improvement Homesite Value: | + | N/A | |
| (+) Improvement Non-Homesite Value: | + | N/A | |
| (+) Land Homesite Value: | + | N/A | |
| (+) Land Non-Homesite Value: | + | N/A | Ag / Timber Use Value |
| (+) Curr Use (HS): | + | N/A | N/A |
| (+) Curr Use (NHS): | + | N/A | N/A |
| | | -------------------------- | |
| (=) Market Value: | = | N/A | |
| (–) Productivity Loss: | – | N/A | |
| | | -------------------------- | |
| (=) Subtotal: | = | N/A | |
| (+) Senior Appraised Value: | + | N/A | |
| (+) Non-Senior Appraised Value: | + | N/A | |
| | | -------------------------- | |
| (=) Total Appraised Value: | = | N/A | |
| (–) Senior Exemption Loss: | – | N/A | |
| (–) Exemption Loss: | – | N/A | |
| | | -------------------------- | |
| (=) Taxable Value: | = | N/A | |
Taxing Jurisdiction
| Owner: | MALLOW II JOHN SHERWIN & MALLOW ARNE | | |
| % Ownership: | 100.0000000000% | | |
| Total Value: | N/A | | |
| Tax Area: | W1 - W1 |
| WRICH | W RICHLAND | N/A | N/A | N/A | N/A | | |
| WRPOLICE | W RICHLAND POLICE STATION BOND | N/A | N/A | N/A | N/A | | |
| CNYHMNSVCS | COUNTY HUMAN SERVICES | N/A | N/A | N/A | N/A | | |
| CNYVET | COUNTY VETERANS | N/A | N/A | N/A | N/A | | |
| COUNTY | COUNTY | N/A | N/A | N/A | N/A | | |
| FIR004E | FIRE DIST #4 EMS | N/A | N/A | N/A | N/A | | |
| FIRE4 | FIRE DIST #4 | N/A | N/A | N/A | N/A | | |
| FIRE4LTDBD | FIRE DIST #4 BOND | N/A | N/A | N/A | N/A | | |
| PTKEN | PORT OF KENNEWICK | N/A | N/A | N/A | N/A | | |
| SD400 | SCHOOL DIST 400 DEBT SERVICE | N/A | N/A | N/A | N/A | | |
| SD400CP | SCHOOL DIST 400 CAPITAL PROJECTS | N/A | N/A | N/A | N/A | | |
| SD400MO | SCHOOL DIST 400 ENRICHMENT | N/A | N/A | N/A | N/A | | |
| STATE | STATE SCHOOL | N/A | N/A | N/A | N/A | | |
| STATE2 | STATE SCHOOL PART 2 | N/A | N/A | N/A | N/A | | |
| | Total Tax Rate: | N/A | | | | | |
| | | | | Taxes w/Current Exemptions: | N/A | | |
| | | | | Taxes w/o Exemptions: | N/A | | |
Improvement / Building
| Improvement #1: | RESIDENTIAL BLDGS | State Code: | 520 | 2805.5 sqft | Value: | N/A |
| Exterior Wall: | Stucco | Fireplace: | FIREPLACE | | Fixture Count: | Count | Foundation: | Crawl/Concrete Perimeter Piers | | Full Bathrooms: | Count | HVAC: | Central heat/cooling | | Number of Bedrooms: | Count | Roof Covering: | Comp Shingle |
|
| | Type | Description | Class CD | Sub Class CD | Year Built | Area |
| | MA | Main Area | 30 | | 2021 | 2805.5 |
| | ATTGAR | ATTGAR | 30 | | 2021 | 817.5 |
| | CovPatio | Covered Patio | 30 | | 2021 | 84.5 |
| | CovPatio | Covered Patio | 30 | | 2021 | 397.0 |
Property Image
Land
| 1 | 9 | Homesite | 0.9000 | 39204.00 | 0.00 | 0.00 | 1.00 | N/A | N/A |
Roll Value History
| 2026 | N/A | N/A | N/A | N/A | N/A |
| 2025 | $519,450 | $100,000 | $0 | $619,450 | $619,450 |
| 2024 | $481,910 | $85,000 | $0 | $566,910 | $566,910 |
| 2023 | $476,530 | $85,000 | $0 | $561,530 | $561,530 |
| 2022 | $330,210 | $85,000 | $0 | $415,210 | $415,210 |
Deed and Sales History
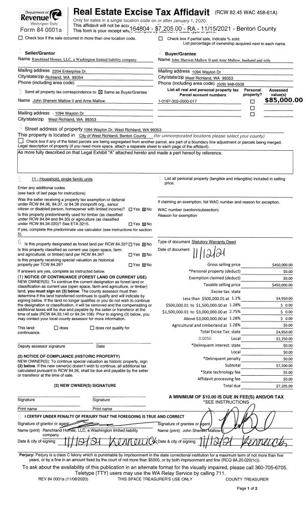
| 1 | 11/12/2021 | SWD | Statutory Warranty Deed | RANCHLAND HOMES LLC | MALLOW II JOHN SHERWIN & MALLOW ARNE | 2021-052033 | | $450,000.00 | 164804 | |
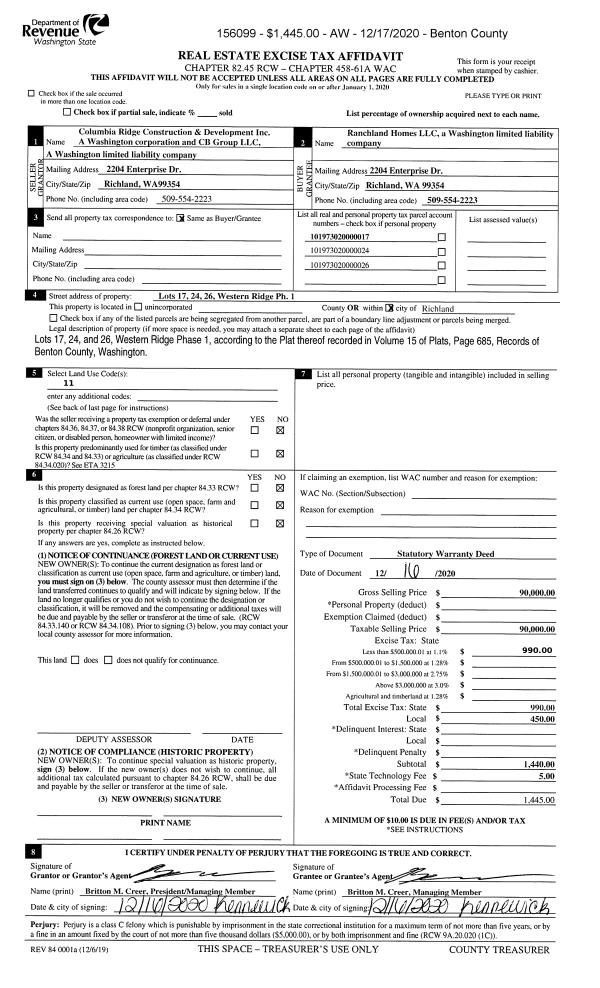
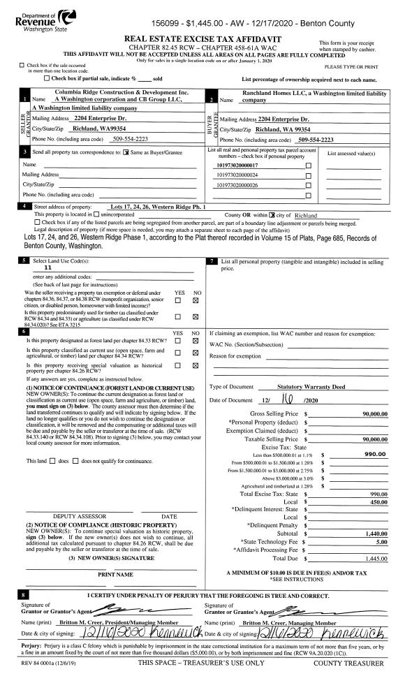
| 2 | 12/16/2020 | SWD | Statutory Warranty Deed | COLUMBIA RIDGE CONSTRUCTION & DEVELOPMENT INC | RANCHLAND HOMES LLC | 2020-051252 | | $90,000.00 | 156099 | |
|   | |
Payout Agreement
| No payout information available.. |