Property
Account |
| Property ID: | 313326 | Abbreviated Legal Description: | WESTERN RIDGE PHASE 1, LOT 26. RECORDED IN VOLUME 15 OF PLATS AT PAGE 685, RECORDS OF BENTON COUNTY, WASHINGTON. AF#2020-034593, 09/10/2020 |
| Parcel # / Geo ID: | 101973020000026 | Agent Code: | |
| Type: | Real | | |
| Tax Area: | W1 - W1 | Land Use Code | 11 |
| Open Space: | N | DFL | N |
| Historic Property: | N | Remodel Property: | N |
| Multi-Family Redevelopment: | N | | |
| Township: | 09 | Section: | 01 |
| Range: | 27 | Legal Acres: | 0.2400 |
Location |
| Address: | 841 WAYLON DR WEST RICHLAND, WA 99353 | Mapsco: | |
| Neighborhood: | 15041 - Paradise Way Single Level | Map ID: | 0197-302 |
| Neighborhood CD: | 15041 |
Owner |
| Name: | STEILING HEATHER & OROURKE BARRY | Owner ID: | 467595 |
| Mailing Address: | 841 WAYLON DR WEST RICHLAND, WA 99353 | % Ownership: | 100.0000000000% |
| | | Exemptions: | |
Pay Tax Due
Select the appropriate checkbox next to the year to be paid. Multiple years may be selected.
*Convenience Fee not included
Taxes and Assessment Details
Property Tax Information as of
03/31/2026
Click on "Statement Details" to expand or collapse a tax statement.
* Please enter a valid date ** Please enter a valid date *
Statement Details |
| 2026 | 80736 | CITWR - CITY OF WEST RICHLAND | $432.59 | $432.58 | $0.00 | $0.00 | $0.00 | $865.17 |
| 2026 | 80736 | CTYGEN - COUNTY BENTON | $262.10 | $262.09 | $0.00 | $0.00 | $0.00 | $524.19 |
| 2026 | 80736 | FIR004 - FIRE DISTRICT #4 | $661.36 | $661.35 | $0.00 | $0.00 | $0.00 | $1322.71 |
| 2026 | 80736 | PRTK - PORT OF KENNEWICK | $67.61 | $67.60 | $0.00 | $0.00 | $0.00 | $135.21 |
| 2026 | 80736 | SCH400 - RICHLAND SD 400 | $1321.98 | $1321.97 | $0.00 | $0.00 | $0.00 | $2643.95 |
| 2026 | 80736 | STATE - STATE SCHOOL | $743.14 | $743.12 | $0.00 | $0.00 | $0.00 | $1486.26 |
| 2026 | 80736 | BCD - BENTON CONSERVATION DISTRICT | $2.51 | $2.51 | $0.00 | $0.00 | $0.00 | $5.02 |
| 2026 | 80736 | HORT - HORTICULTURAL PEST AND DISEASE CONTROL | $0.75 | $0.75 | $0.00 | $0.00 | $0.00 | $1.50 |
| 2026 | 80736 | MOSBEN - MOSQUITO | $19.66 | $19.65 | $0.00 | $0.00 | $0.00 | $39.31 |
| 2026 | 80736 | WEDBEN - NOXIOUS WEED CONTROL BOARD | $2.50 | $2.50 | $0.00 | $0.00 | $0.00 | $5.00 |
| 2026 | 80736 | TOTAL: | $3514.20 | $3514.12 | $0.00 | $0.00 | $0.00 | $7028.32 |
|
| 2026 | 80736 | $3514.20 | $3514.12 | $0.00 | $0.00 | $0.00 | $7028.32 |
Statement Details |
| 2025 | 81191 | CITWR - CITY OF WEST RICHLAND | $447.84 | $447.83 | $0.00 | $0.00 | $895.67 | $0.00 |
| 2025 | 81191 | CTYGEN - COUNTY BENTON | $263.79 | $263.78 | $0.00 | $0.00 | $527.57 | $0.00 |
| 2025 | 81191 | FIR004 - FIRE DISTRICT #4 | $662.17 | $662.17 | $0.00 | $0.00 | $1324.34 | $0.00 |
| 2025 | 81191 | PRTK - PORT OF KENNEWICK | $67.52 | $67.51 | $0.00 | $0.00 | $135.03 | $0.00 |
| 2025 | 81191 | SCH400 - RICHLAND SD 400 | $1329.11 | $1329.10 | $0.00 | $0.00 | $2658.21 | $0.00 |
| 2025 | 81191 | STATE - STATE SCHOOL | $761.88 | $761.87 | $0.00 | $0.00 | $1523.75 | $0.00 |
| 2025 | 81191 | BCD - BENTON CONSERVATION DISTRICT | $2.51 | $2.51 | $0.00 | $0.00 | $5.02 | $0.00 |
| 2025 | 81191 | HORT - HORTICULTURAL PEST AND DISEASE CONTROL | $0.75 | $0.75 | $0.00 | $0.00 | $1.50 | $0.00 |
| 2025 | 81191 | MOSBEN - MOSQUITO | $19.83 | $19.82 | $0.00 | $0.00 | $39.65 | $0.00 |
| 2025 | 81191 | WEDBEN - NOXIOUS WEED CONTROL BOARD | $2.50 | $2.50 | $0.00 | $0.00 | $5.00 | $0.00 |
| 2025 | 81191 | TOTAL: | $3557.90 | $3557.84 | $0.00 | $0.00 | $7115.74 | $0.00 |
|
| 2025 | 81191 | $3557.90 | $3557.84 | $0.00 | $0.00 | $7115.74 | $0.00 |
Values
| (+) Improvement Homesite Value: | + | N/A | |
| (+) Improvement Non-Homesite Value: | + | N/A | |
| (+) Land Homesite Value: | + | N/A | |
| (+) Land Non-Homesite Value: | + | N/A | Ag / Timber Use Value |
| (+) Curr Use (HS): | + | N/A | N/A |
| (+) Curr Use (NHS): | + | N/A | N/A |
| | | -------------------------- | |
| (=) Market Value: | = | N/A | |
| (–) Productivity Loss: | – | N/A | |
| | | -------------------------- | |
| (=) Subtotal: | = | N/A | |
| (+) Senior Appraised Value: | + | N/A | |
| (+) Non-Senior Appraised Value: | + | N/A | |
| | | -------------------------- | |
| (=) Total Appraised Value: | = | N/A | |
| (–) Senior Exemption Loss: | – | N/A | |
| (–) Exemption Loss: | – | N/A | |
| | | -------------------------- | |
| (=) Taxable Value: | = | N/A | |
Taxing Jurisdiction
| Owner: | STEILING HEATHER & OROURKE BARRY | | |
| % Ownership: | 100.0000000000% | | |
| Total Value: | N/A | | |
| Tax Area: | W1 - W1 |
| WRICH | W RICHLAND | N/A | N/A | N/A | N/A | | |
| WRPOLICE | W RICHLAND POLICE STATION BOND | N/A | N/A | N/A | N/A | | |
| CNYHMNSVCS | COUNTY HUMAN SERVICES | N/A | N/A | N/A | N/A | | |
| CNYVET | COUNTY VETERANS | N/A | N/A | N/A | N/A | | |
| COUNTY | COUNTY | N/A | N/A | N/A | N/A | | |
| FIR004E | FIRE DIST #4 EMS | N/A | N/A | N/A | N/A | | |
| FIRE4 | FIRE DIST #4 | N/A | N/A | N/A | N/A | | |
| FIRE4LTDBD | FIRE DIST #4 BOND | N/A | N/A | N/A | N/A | | |
| PTKEN | PORT OF KENNEWICK | N/A | N/A | N/A | N/A | | |
| SD400 | SCHOOL DIST 400 DEBT SERVICE | N/A | N/A | N/A | N/A | | |
| SD400CP | SCHOOL DIST 400 CAPITAL PROJECTS | N/A | N/A | N/A | N/A | | |
| SD400MO | SCHOOL DIST 400 ENRICHMENT | N/A | N/A | N/A | N/A | | |
| STATE | STATE SCHOOL | N/A | N/A | N/A | N/A | | |
| STATE2 | STATE SCHOOL PART 2 | N/A | N/A | N/A | N/A | | |
| | Total Tax Rate: | N/A | | | | | |
| | | | | Taxes w/Current Exemptions: | N/A | | |
| | | | | Taxes w/o Exemptions: | N/A | | |
Improvement / Building
| Improvement #1: | RESIDENTIAL BLDGS | State Code: | 520 | 1781.5 sqft | Value: | N/A |
| Exterior Wall: | Hardboard | Fireplace: | FIREPLACE | | Fixture Count: | Count | Foundation: | Crawl/Concrete Perimeter Piers | | Full Bathrooms: | Count | HVAC: | Central heat/cooling | | Number of Bedrooms: | Count | Roof Covering: | Comp Shingle |
|
| | Type | Description | Class CD | Sub Class CD | Year Built | Area |
| | MA | Main Area | 30 | | 2022 | 1781.5 |
| | ATTGAR | ATTGAR | 30 | | 2022 | 874.5 |
| | CovPatio | Covered Patio | 30 | | 2022 | 38.5 |
| | CovBalc | Covered Balcony | 30 | | 2022 | 446.0 |
| | BSMT | Basement | 30 | | 2022 | 1699.0 |
Property Image
Land
| 1 | 9 | Homesite | 0.2400 | 10454.40 | 0.00 | 0.00 | 1.00 | N/A | N/A |
Roll Value History
| 2026 | N/A | N/A | N/A | N/A | N/A |
| 2025 | $562,550 | $120,000 | $0 | $682,550 | $682,550 |
| 2024 | $586,840 | $85,000 | $0 | $671,840 | $671,840 |
| 2023 | $518,280 | $85,000 | $0 | $603,280 | $603,280 |
| 2022 | $76,260 | $85,000 | $0 | $161,260 | $161,260 |
Deed and Sales History
| 1 | 03/28/2023 | SWD | Statutory Warranty Deed | INSPIRED HOME DESIGN LLC | STEILING HEATHER & OROURKE BARRY | 2023-005709 | | $692,500.00 | 175037 | |
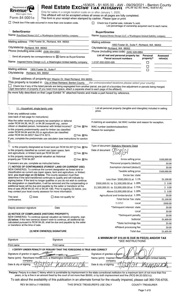
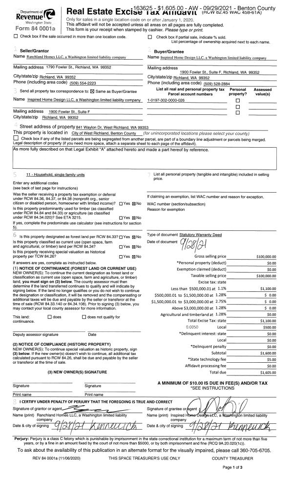
| 2 | 09/28/2021 | SWD | Statutory Warranty Deed | RANCHLAND HOMES LLC | INSPIRED HOME DESIGN LLC | 2021-045151 | | $100,000.00 | 163625 | |
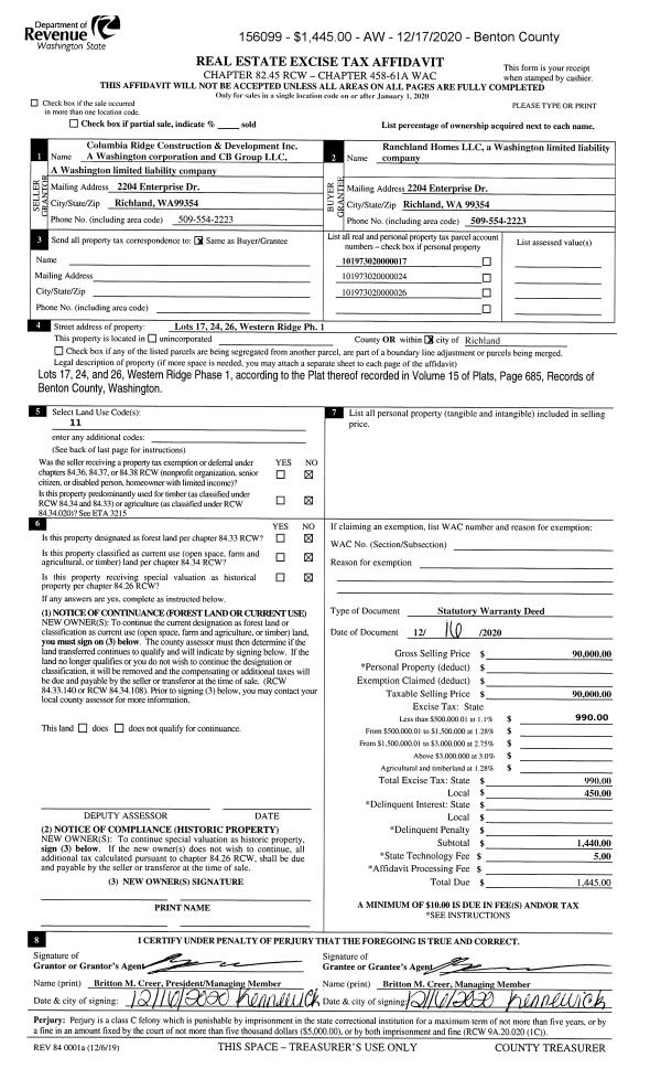
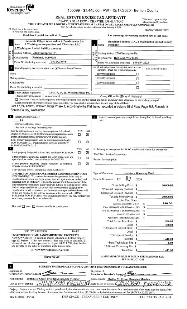
| 3 | 12/16/2020 | SWD | Statutory Warranty Deed | COLUMBIA RIDGE CONSTRUCTION & DEVELOPMENT INC | RANCHLAND HOMES LLC | 2020-051252 | | $90,000.00 | 156099 | |
|   | |
Payout Agreement
| No payout information available.. |