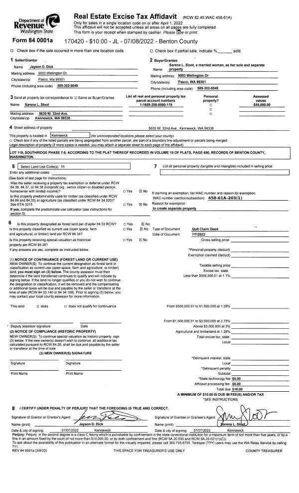
| 1 | 07/07/2022 | QCD | Quit Claim Deed | DICK JAYSON D | SLOOT SARENA L | 2022-022872 | | $0.00 | 170420 | |
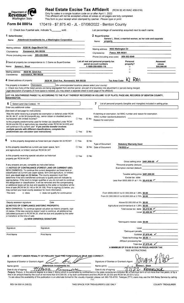
| 2 | 07/06/2022 | SWD | Statutory Warranty Deed | ALDERBROOK INVESTMENTS INC | SLOOT SARENA L | 2022-022871 | | $491,900.00 | 170419 | |
| 3 | 10/20/2020 | SWD | Statutory Warranty Deed | MADER KIRK D. & MADONNA L. | ALDERBROOK INVESTMENTS INC | 2020-041554 | | $453,400.00 | 154606 | |
|   | |