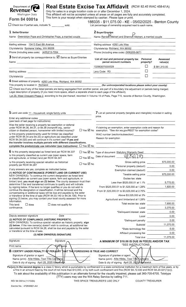
| 1 | 04/28/2025 | SWD | Statutory Warranty Deed | POPE GWENDOLYN & CHRISTOPHER | MEINERT RANDALL W & SHANNON P | 2025-009623 | | $675,000.00 | 188335 | |
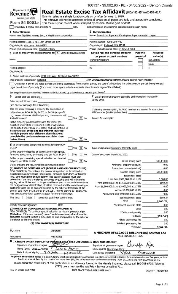
| 2 | 03/31/2022 | SWD | Statutory Warranty Deed | NEW TRADITION HOMES INC | POPE GWENDOLYN & CHRISTOPHER | 2022-012046 | | $593,144.00 | 168137 | |
| 3 | 08/10/2021 | SWD | Statutory Warranty Deed | | NEW TRADITION HOMES INC | 2021-037857 | | $997,000.00 | 162409 | |
|   | |