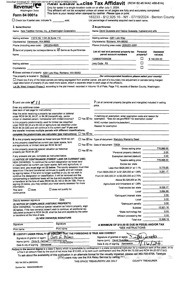
315204 QUEZADA DAVID & YESICA for Year 2026 - 2027

Click on a title bar to expand or collapse the information.

Property

Pay Tax Due

Taxes and Assessment Details

Values

Taxing Jurisdiction

Improvement / Building

Property Image

Land

Roll Value History

Deed and Sales History

Payout Agreement

Assessor Website          Treasurer Website          Mapping Website