|   |
| 316338 | 1435 SW KELANDREN DR
PROSSER, WA 99350 | BELLA VISTA PHASE 2, LOT 1. RECORDED IN VOLUME 15 OF PLATS AT PAGE 733, RECORDS OF BENTON COUNTY, WASHINGTON. AF#2022-011327, 04/01/2022 |
| 316339 | 1439 SW KELANDREN DR
PROSSER, WA 99350 | BELLA VISTA PHASE 2, LOT 2. RECORDED IN VOLUME 15 OF PLATS AT PAGE 733, RECORDS OF BENTON COUNTY, WASHINGTON. AF#2022-011327, 04/01/2022 |
| 316340 | 1503 SW KELANDREN DR
PROSSER, WA 99350 | BELLA VISTA PHASE 2, LOT 3. RECORDED IN VOLUME 15 OF PLATS AT PAGE 733, RECORDS OF BENTON COUNTY, WASHINGTON. AF#2022-011327, 04/01/2022 |
| 316341 | 1507 SW KELANDREN DR
PROSSER, WA 99350 | BELLA VISTA PHASE 2, LOT 4. RECORDED IN VOLUME 15 OF PLATS AT PAGE 733, RECORDS OF BENTON COUNTY, WASHINGTON. AF#2022-011327, 04/01/2022 |
| 316342 | 1571 SW KELANDREN DR
PROSSER, WA 99350 | BELLA VISTA PHASE 2, LOT 5. RECORDED IN VOLUME 15 OF PLATS AT PAGE 733, RECORDS OF BENTON COUNTY, WASHINGTON. AF#2022-011327, 04/01/2022 |
| 316343 | 1575 SW KELANDREN DR
PROSSER, WA 99350 | BELLA VISTA PHASE 2, LOT 6. RECORDED IN VOLUME 15 OF PLATS AT PAGE 733, RECORDS OF BENTON COUNTY, WASHINGTON. AF#2022-011327, 04/01/2022 |
| 316344 | 1436 SW KELANDREN DR
PROSSER, WA 99350 | BELLA VISTA PHASE 2, LOT 7. RECORDED IN VOLUME 15 OF PLATS AT PAGE 733, RECORDS OF BENTON COUNTY, WASHINGTON. AF#2022-011327, 04/01/2022 |
| 316345 | 1504 SW KELANDREN DR
PROSSER, WA 99350 | BELLA VISTA PHASE 2, LOT 8. RECORDED IN VOLUME 15 OF PLATS AT PAGE 733, RECORDS OF BENTON COUNTY, WASHINGTON. AF#2022-011327, 04/01/2022 |
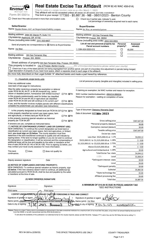
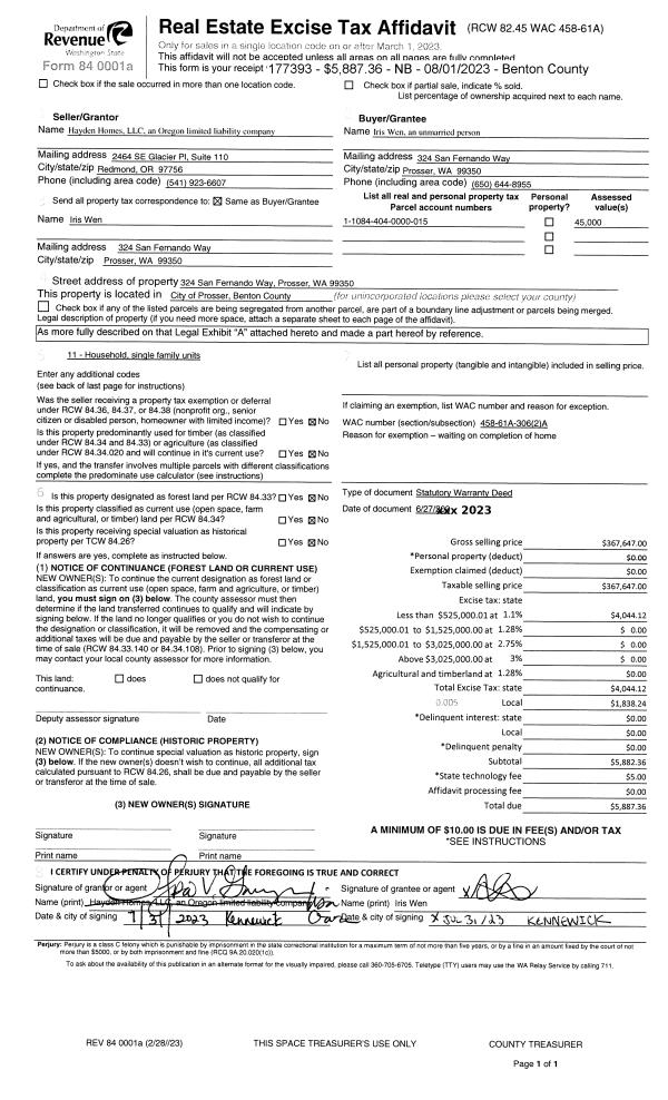
| 316346 | 300 SAN FERNANDO WAY
PROSSER, WA 99350 | BELLA VISTA PHASE 2, LOT 9. RECORDED IN VOLUME 15 OF PLATS AT PAGE 733, RECORDS OF BENTON COUNTY, WASHINGTON. AF#2022-011327, 04/01/2022 |
| 316347 | 304 SAN FERNANDO WAY
PROSSER, WA 99350 | BELLA VISTA PHASE 2, LOT 10. RECORDED IN VOLUME 15 OF PLATS AT PAGE 733, RECORDS OF BENTON COUNTY, WASHINGTON. AF#2022-011327, 04/01/2022 |
| 316348 | 308 SAN FERNANDO WAY
PROSSER, WA 99350 | BELLA VISTA PHASE 2, LOT 11. RECORDED IN VOLUME 15 OF PLATS AT PAGE 733, RECORDS OF BENTON COUNTY, WASHINGTON. AF#2022-011327, 04/01/2022 |
| 316349 | 312 SAN FERNANDO WAY
PROSSER, WA 99350 | BELLA VISTA PHASE 2, LOT 12. RECORDED IN VOLUME 15 OF PLATS AT PAGE 733, RECORDS OF BENTON COUNTY, WASHINGTON. AF#2022-011327, 04/01/2022 |
| 316350 | 316 SAN FERNANDO WAY
PROSSER, WA 99350 | BELLA VISTA PHASE 2, LOT 13. RECORDED IN VOLUME 15 OF PLATS AT PAGE 733, RECORDS OF BENTON COUNTY, WASHINGTON. AF#2022-011327, 04/01/2022 |
| 316351 | 320 SAN FERNANDO WAY
PROSSER, WA 99350 | BELLA VISTA PHASE 2, LOT 14. RECORDED IN VOLUME 15 OF PLATS AT PAGE 733, RECORDS OF BENTON COUNTY, WASHINGTON. AF#2022-011327, 04/01/2022 |
| 316353 | 328 SAN FERNANDO WAY
PROSSER, WA 99350 | BELLA VISTA PHASE 2, LOT 16. RECORDED IN VOLUME 15 OF PLATS AT PAGE 733, RECORDS OF BENTON COUNTY, WASHINGTON. AF#2022-011327, 04/01/2022 |
| 316354 | 362 SAN FERNANDO WAY
PROSSER, WA 99350 | BELLA VISTA PHASE 2, LOT 17. RECORDED IN VOLUME 15 OF PLATS AT PAGE 733, RECORDS OF BENTON COUNTY, WASHINGTON. AF#2022-011327, 04/01/2022 |
| 316355 | 241 LADERA ST
PROSSER, WA 99350 | BELLA VISTA PHASE 2, LOT 18. RECORDED IN VOLUME 15 OF PLATS AT PAGE 733, RECORDS OF BENTON COUNTY, WASHINGTON. AF#2022-011327, 04/01/2022 |
| 316379 | 323 SAN FERNANDO WAY
PROSSER, WA 99350 | BELLA VISTA PHASE 2, LOT 42. RECORDED IN VOLUME 15 OF PLATS AT PAGE 733, RECORDS OF BENTON COUNTY, WASHINGTON. AF#2022-011327, 04/01/2022 |
| 316380 | 319 SAN FERNANDO WAY
PROSSER, WA 99350 | BELLA VISTA PHASE 2, LOT 43. RECORDED IN VOLUME 15 OF PLATS AT PAGE 733, RECORDS OF BENTON COUNTY, WASHINGTON. AF#2022-011327, 04/01/2022 |
|