Property
Account |
| Property ID: | 317975 | Abbreviated Legal Description: | THAT PORTION OF LOTS 1, 2 AND 3, SHORT PLAT NO. 2516, ACCORDING TO THE SURVEY THEREOF RECORDED UNDER AUDITOR'S FILE NO. 2000-019897, RECORDS OF BENTON COUNTY, WASHINGTON, DESCRIBED AS FOLLOWS: COMMENCING AT THE NORTHWEST CORNER OF SAID LOT 3; THENCE SOUTH |
| Parcel # / Geo ID: | 114981012516008 | Agent Code: | |
| Type: | Real | | |
| Tax Area: | R1 - R1 | Land Use Code | 59 |
| Open Space: | N | DFL | N |
| Historic Property: | N | Remodel Property: | N |
| Multi-Family Redevelopment: | N | | |
| Township: | 09 | Section: | 14 |
| Range: | 28 | Legal Acres: | 1.1212 |
Location |
| Address: | 425 BRADLEY BLVD RICHLAND, WA 99352 | Mapsco: | |
| Neighborhood: | Richland Retail | Map ID: | |
| Neighborhood CD: | 660100R |
Owner |
| Name: | STARBOARD BRADLEY DST | Owner ID: | 487454 |
| Mailing Address: | 19100 VON KARMAN AVE STE 340 IRVINE, CA 92612 | % Ownership: | 100.0000000000% |
| | | Exemptions: | |
Pay Tax Due
Select the appropriate checkbox next to the year to be paid. Multiple years may be selected.
*Convenience Fee not included
Taxes and Assessment Details
Property Tax Information as of
04/03/2026
Click on "Statement Details" to expand or collapse a tax statement.
* Please enter a valid date ** Please enter a valid date *
Statement Details |
| 2026 | 84833 | CITR - CITY OF RICHLAND | $6788.43 | $6788.41 | $0.00 | $0.00 | $0.00 | $13576.84 |
| 2026 | 84833 | CTYGEN - COUNTY BENTON | $2794.69 | $2794.67 | $0.00 | $0.00 | $0.00 | $5589.36 |
| 2026 | 84833 | PRTB - PORT OF BENTON | $886.01 | $886.00 | $0.00 | $0.00 | $0.00 | $1772.01 |
| 2026 | 84833 | SCH400 - RICHLAND SD 400 | $14095.91 | $14095.91 | $0.00 | $0.00 | $0.00 | $28191.82 |
| 2026 | 84833 | STATE - STATE SCHOOL | $7923.84 | $7923.82 | $0.00 | $0.00 | $0.00 | $15847.66 |
| 2026 | 84833 | BCD - BENTON CONSERVATION DISTRICT | $2.56 | $2.55 | $0.00 | $0.00 | $0.00 | $5.11 |
| 2026 | 84833 | HORT - HORTICULTURAL PEST AND DISEASE CONTROL | $0.75 | $0.75 | $0.00 | $0.00 | $0.00 | $1.50 |
| 2026 | 84833 | MOSBEN - MOSQUITO | $45.08 | $45.07 | $0.00 | $0.00 | $0.00 | $90.15 |
| 2026 | 84833 | WEDBEN - NOXIOUS WEED CONTROL BOARD | $2.51 | $2.50 | $0.00 | $0.00 | $0.00 | $5.01 |
| 2026 | 84833 | TOTAL: | $32539.78 | $32539.68 | $0.00 | $0.00 | $0.00 | $65079.46 |
|
| 2026 | 84833 | $32539.78 | $32539.68 | $0.00 | $0.00 | $0.00 | $65079.46 |
Statement Details |
| 2025 | 85352 | CITR - CITY OF RICHLAND | $8896.75 | $8896.74 | $0.00 | $0.00 | $17793.49 | $0.00 |
| 2025 | 85352 | CTYGEN - COUNTY BENTON | $3683.87 | $3683.84 | $0.00 | $0.00 | $7367.71 | $0.00 |
| 2025 | 85352 | PRTB - PORT OF BENTON | $1431.71 | $1431.70 | $0.00 | $0.00 | $2863.41 | $0.00 |
| 2025 | 85352 | SCH400 - RICHLAND SD 400 | $18561.62 | $18561.62 | $0.00 | $0.00 | $37123.24 | $0.00 |
| 2025 | 85352 | STATE - STATE SCHOOL | $10640.03 | $10640.01 | $0.00 | $0.00 | $21280.04 | $0.00 |
| 2025 | 85352 | BCD - BENTON CONSERVATION DISTRICT | $2.56 | $2.55 | $0.00 | $0.00 | $5.11 | $0.00 |
| 2025 | 85352 | HORT - HORTICULTURAL PEST AND DISEASE CONTROL | $0.75 | $0.75 | $0.00 | $0.00 | $1.50 | $0.00 |
| 2025 | 85352 | MOSBEN - MOSQUITO | $45.25 | $45.24 | $0.00 | $0.00 | $90.49 | $0.00 |
| 2025 | 85352 | WEDBEN - NOXIOUS WEED CONTROL BOARD | $2.51 | $2.50 | $0.00 | $0.00 | $5.01 | $0.00 |
| 2025 | 85352 | DLQ NOTICE - DELINQUENCY AVOIDANCE COST | $10.00 | $0.00 | $0.00 | $0.00 | $10.00 | $0.00 |
| 2025 | 85352 | TOTAL: | $43275.05 | $43264.95 | $0.00 | $0.00 | $86540.00 | $0.00 |
|
| 2025 | 85352 | $43275.05 | $43264.95 | $0.00 | $0.00 | $86540.00 | $0.00 |
Values
| (+) Improvement Homesite Value: | + | $0 | |
| (+) Improvement Non-Homesite Value: | + | $0 | |
| (+) Land Homesite Value: | + | $0 | |
| (+) Land Non-Homesite Value: | + | $594,620 | |
| (+) Curr Use (HS): | + | $0 | $0 |
| (+) Curr Use (NHS): | + | $0 | $0 |
| | | -------------------------- | |
| (=) Market Value: | = | $594,620 | |
| (–) Productivity Loss: | – | $0 | |
| | | -------------------------- | |
| (=) Subtotal: | = | $594,620 | |
| (+) Senior Appraised Value: | + | $0 | |
| (+) Non-Senior Appraised Value: | + | $594,620 | |
| | | -------------------------- | |
| (=) Total Appraised Value: | = | $594,620 | |
| (–) Senior Exemption Loss: | – | $0 | |
| (–) Exemption Loss: | – | $0 | |
| | | -------------------------- | |
| (=) Taxable Value: | = | $594,620 | |
Taxing Jurisdiction
| Owner: | STARBOARD BRADLEY DST | | |
| % Ownership: | 100.0000000000% | | |
| Total Value: | $594,620 | | |
| Tax Area: | R1 - R1 |
| RICH | RICHLAND | 1.7804104734 | $594,620 | $594,620 | $1,058.67 | | |
| RICHLIB | RICHLAND LIBRARY DEBT SERVICE | 0.1377817705 | $594,620 | $594,620 | $81.93 | | |
| CNYHMNSVCS | COUNTY HUMAN SERVICES | 0.0250000001 | $594,620 | $594,620 | $14.87 | | |
| CNYVET | COUNTY VETERANS | 0.0112499999 | $594,620 | $594,620 | $6.69 | | |
| COUNTY | COUNTY | 0.7773049553 | $594,620 | $594,620 | $462.20 | | |
| PORTBNT | PORT OF BENTON | 0.3038731782 | $594,620 | $594,620 | $180.69 | | |
| PTBNT11AB | PORT OF BENTON 2011 A & B BOND | 0.0000000000 | $594,620 | $594,620 | $0.00 | | |
| SD400 | SCHOOL DIST 400 DEBT SERVICE | 1.2320200936 | $594,620 | $594,620 | $732.58 | | |
| SD400CP | SCHOOL DIST 400 CAPITAL PROJECTS | 0.6904866736 | $594,620 | $594,620 | $410.58 | | |
| SD400MO | SCHOOL DIST 400 ENRICHMENT | 2.0912781634 | $594,620 | $594,620 | $1,243.52 | | |
| STATE | STATE SCHOOL | 1.4343756927 | $594,620 | $594,620 | $852.91 | | |
| STATE2 | STATE SCHOOL PART 2 | 0.7733171175 | $594,620 | $594,620 | $459.83 | | |
| | Total Tax Rate: | 9.2570981182 | | | | | |
| | | | | Taxes w/Current Exemptions: | $5,504.47 | | |
| | | | | Taxes w/o Exemptions: | $5,504.47 | | |
Improvement / Building
Property Image
Land
| 1 | 11 | Primary Commercial/Indust Land | 1.1212 | 48839.47 | 0.00 | 0.00 | 1.00 | $594,620 | $0 |
Roll Value History
| 2026 | N/A | N/A | N/A | N/A | N/A |
| 2025 | $6,622,580 | $655,300 | $0 | $7,277,880 | $7,277,880 |
| 2024 | $8,716,660 | $665,970 | $0 | $9,382,630 | $9,382,630 |
| 2023 | $0 | $594,620 | $0 | $594,620 | $594,620 |
| 2022 | $0 | $515,520 | $0 | $515,520 | $515,520 |
Deed and Sales History
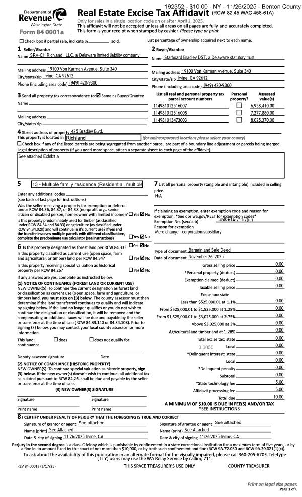
| 1 | 11/26/2025 | B&SDEED | Bargain and Sale Deed | SRA-CH RICHLAND I LLC | STARBOARD BRADLEY DST | 2025-028711 | | $0.00 | 192352 | |
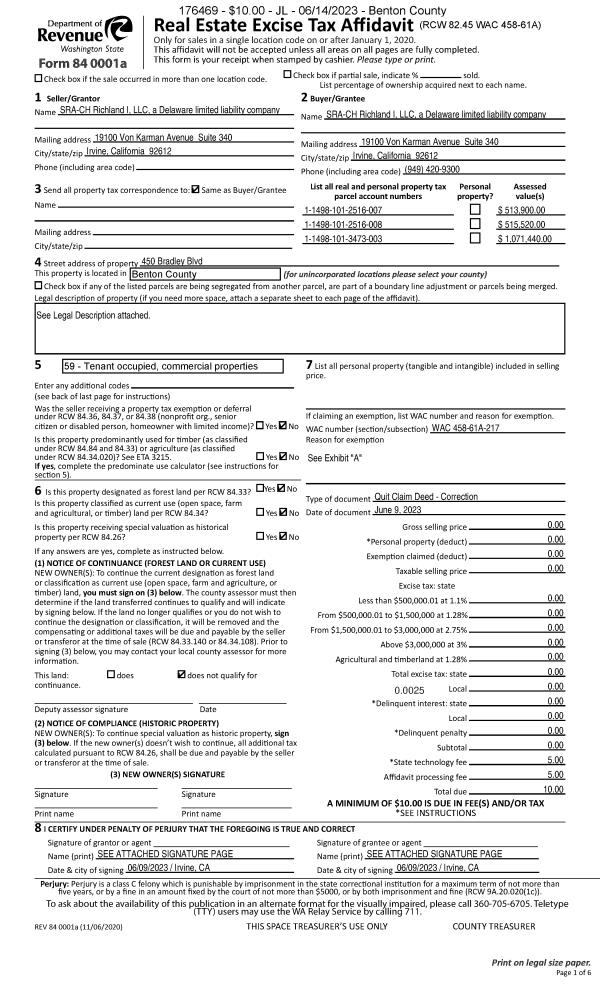
| 2 | 06/09/2023 | QCD | Quit Claim Deed | SRA-CH RICHLAND I LLC | SRA-CH RICHLAND I LLC | 2023-011886 | | $0.00 | 176469 | |
| 3 | 11/16/2022 | QCD | Quit Claim Deed | SRA-CH RICHLAND I LLC | SRA-CH RICHLAND I LLC | 2022-035948 | | $0.00 | 173180 | |
Payout Agreement
| No payout information available.. |