Property
Account |
| Property ID: | 36659 | Abbreviated Legal Description: | PLAT OF RICHLAND BLOCK 626 LOT 4 THE PORTION OF LOT 4 DEFINED AS FOLLOWS: BEGINNING AT THE SOUTHWEST CORNER OF SAID LOT 4. THENCE NORTH 0 DEGREES 48'50' WEST ALONG THE WEST LINE OF SAID LOT AND THE EAST LINE OF STEVENS DRIVE 383.79 FEET TO THE |
| Parcel # / Geo ID: | 111983020626005 | Agent Code: | |
| Type: | Real | | |
| Tax Area: | R1 - R1 | Land Use Code | 54 |
| Open Space: | N | DFL | N |
| Historic Property: | N | Remodel Property: | N |
| Multi-Family Redevelopment: | N | | |
| Township: | 09 | Section: | 11 |
| Range: | 28 | Legal Acres: | 2.9300 |
Location |
| Address: | 1320 LEE BLVD RICHLAND, WA 99352 | Mapsco: | |
| Neighborhood: | Richland Retail | Map ID: | |
| Neighborhood CD: | 660100R |
Owner |
| Name: | CFT C RICHLAND LLC | Owner ID: | 427324 |
| Mailing Address: | ALBERTSONS COMPANIES C/O PARADIGM TAX GROUP PO BOX 800729 DALLAS, TX 75380-0729 | % Ownership: | 100.0000000000% |
| | | Exemptions: | |
Pay Tax Due
Select the appropriate checkbox next to the year to be paid. Multiple years may be selected.
*Convenience Fee not included
Taxes and Assessment Details
Property Tax Information as of
04/09/2026
Click on "Statement Details" to expand or collapse a tax statement.
* Please enter a valid date ** Please enter a valid date *
Statement Details |
| 2026 | 22062 | CITR - CITY OF RICHLAND | $3004.56 | $3004.54 | $0.00 | $0.00 | $0.00 | $6009.10 |
| 2026 | 22062 | CTYGEN - COUNTY BENTON | $1236.93 | $1236.92 | $0.00 | $0.00 | $0.00 | $2473.85 |
| 2026 | 22062 | PRTB - PORT OF BENTON | $392.15 | $392.14 | $0.00 | $0.00 | $0.00 | $784.29 |
| 2026 | 22062 | SCH400 - RICHLAND SD 400 | $6238.86 | $6238.84 | $0.00 | $0.00 | $0.00 | $12477.70 |
| 2026 | 22062 | STATE - STATE SCHOOL | $3507.10 | $3507.08 | $0.00 | $0.00 | $0.00 | $7014.18 |
| 2026 | 22062 | BCD - BENTON CONSERVATION DISTRICT | $2.65 | $2.64 | $0.00 | $0.00 | $0.00 | $5.29 |
| 2026 | 22062 | HORT - HORTICULTURAL PEST AND DISEASE CONTROL | $0.75 | $0.75 | $0.00 | $0.00 | $0.00 | $1.50 |
| 2026 | 22062 | MOSBEN - MOSQUITO | $20.53 | $20.52 | $0.00 | $0.00 | $0.00 | $41.05 |
| 2026 | 22062 | WEDBEN - NOXIOUS WEED CONTROL BOARD | $2.51 | $2.50 | $0.00 | $0.00 | $0.00 | $5.01 |
| 2026 | 22062 | TOTAL: | $14406.04 | $14405.93 | $0.00 | $0.00 | $0.00 | $28811.97 |
|
| 2026 | 22062 | $14406.04 | $14405.93 | $0.00 | $0.00 | $0.00 | $28811.97 |
Statement Details |
| 2025 | 22113 | CITR - CITY OF RICHLAND | $3027.06 | $3027.06 | $0.00 | $0.00 | $6054.12 | $0.00 |
| 2025 | 22113 | CTYGEN - COUNTY BENTON | $1253.42 | $1253.39 | $0.00 | $0.00 | $2506.81 | $0.00 |
| 2025 | 22113 | PRTB - PORT OF BENTON | $487.13 | $487.13 | $0.00 | $0.00 | $974.26 | $0.00 |
| 2025 | 22113 | SCH400 - RICHLAND SD 400 | $6315.49 | $6315.46 | $0.00 | $0.00 | $12630.95 | $0.00 |
| 2025 | 22113 | STATE - STATE SCHOOL | $3620.20 | $3620.19 | $0.00 | $0.00 | $7240.39 | $0.00 |
| 2025 | 22113 | BCD - BENTON CONSERVATION DISTRICT | $2.65 | $2.64 | $0.00 | $0.00 | $5.29 | $0.00 |
| 2025 | 22113 | HORT - HORTICULTURAL PEST AND DISEASE CONTROL | $0.75 | $0.75 | $0.00 | $0.00 | $1.50 | $0.00 |
| 2025 | 22113 | MOSBEN - MOSQUITO | $20.70 | $20.69 | $0.00 | $0.00 | $41.39 | $0.00 |
| 2025 | 22113 | WEDBEN - NOXIOUS WEED CONTROL BOARD | $2.51 | $2.50 | $0.00 | $0.00 | $5.01 | $0.00 |
| 2025 | 22113 | TOTAL: | $14729.91 | $14729.81 | $0.00 | $0.00 | $29459.72 | $0.00 |
|
| 2025 | 22113 | $14729.91 | $14729.81 | $0.00 | $0.00 | $29459.72 | $0.00 |
Values
| (+) Improvement Homesite Value: | + | $0 | |
| (+) Improvement Non-Homesite Value: | + | $2,316,510 | |
| (+) Land Homesite Value: | + | $0 | |
| (+) Land Non-Homesite Value: | + | $770,760 | |
| (+) Curr Use (HS): | + | $0 | $0 |
| (+) Curr Use (NHS): | + | $0 | $0 |
| | | -------------------------- | |
| (=) Market Value: | = | $3,087,270 | |
| (–) Productivity Loss: | – | $0 | |
| | | -------------------------- | |
| (=) Subtotal: | = | $3,087,270 | |
| (+) Senior Appraised Value: | + | $0 | |
| (+) Non-Senior Appraised Value: | + | $3,087,270 | |
| | | -------------------------- | |
| (=) Total Appraised Value: | = | $3,087,270 | |
| (–) Senior Exemption Loss: | – | $0 | |
| (–) Exemption Loss: | – | $0 | |
| | | -------------------------- | |
| (=) Taxable Value: | = | $3,087,270 | |
Taxing Jurisdiction
| Owner: | CFT C RICHLAND LLC | | |
| % Ownership: | 100.0000000000% | | |
| Total Value: | $3,087,270 | | |
| Tax Area: | R1 - R1 |
| RICH | RICHLAND | 2.0181047376 | $3,087,270 | $3,087,270 | $6,230.43 | | |
| RICHLIB | RICHLAND LIBRARY DEBT SERVICE | 0.1552429019 | $3,087,270 | $3,087,270 | $479.28 | | |
| CNYHMNSVCS | COUNTY HUMAN SERVICES | 0.0250000001 | $3,087,270 | $3,087,270 | $77.18 | | |
| CNYVET | COUNTY VETERANS | 0.0112499999 | $3,087,270 | $3,087,270 | $34.73 | | |
| COUNTY | COUNTY | 0.9007089219 | $3,087,270 | $3,087,270 | $2,780.73 | | |
| PORTBNT | PORT OF BENTON | 0.3316790761 | $3,087,270 | $3,087,270 | $1,023.98 | | |
| PTBNT11AB | PORT OF BENTON 2011 A & B BOND | 0.0000000000 | $3,087,270 | $3,087,270 | $0.00 | | |
| SD400 | SCHOOL DIST 400 DEBT SERVICE | 1.4212967738 | $3,087,270 | $3,087,270 | $4,387.93 | | |
| SD400CP | SCHOOL DIST 400 CAPITAL PROJECTS | 0.4701918332 | $3,087,270 | $3,087,270 | $1,451.61 | | |
| SD400MO | SCHOOL DIST 400 ENRICHMENT | 2.3509592485 | $3,087,270 | $3,087,270 | $7,258.05 | | |
| STATE | STATE SCHOOL | 1.4169238836 | $3,087,270 | $3,087,270 | $4,374.43 | | |
| STATE2 | STATE SCHOOL PART 2 | 0.7571640106 | $3,087,270 | $3,087,270 | $2,337.57 | | |
| | Total Tax Rate: | 9.8585213872 | | | | | |
| | | | | Taxes w/Current Exemptions: | $30,435.92 | | |
| | | | | Taxes w/o Exemptions: | $30,435.92 | | |
Improvement / Building
| Improvement #1: | Commercial | State Code: | 454 | 41316.0 sqft | Value: | $2,200,500 |
| COMM Framing Class: | Class C - Masonry | COMM HVAC: | Package Unit | | COMM Shape: | Irregular | COMM Sprinkler System: | Y |
|
| Improvement #2: | Commercial | State Code: | 454 | 0.0 sqft | Value: | $116,010 |
| | Type | Description | Class CD | Sub Class CD | Year Built | Area |
| | ASPH | Asphalt | Avg | | 1994 | 80000.0 |
| | CONC | Concrete | Avg | | 1994 | 2800.0 |
| | LGHTPOLE | Light Poles | Avg | | 1994 | 5.0 |
| | FENCECL | Fencing-Chain Link | Avg | | 1994 | 144.0 |
Property Image
Land
| 1 | 11 | Primary Commercial/Indust Land | 2.9300 | 127630.80 | 0.00 | 0.00 | 1.00 | $770,760 | $0 |
Roll Value History
| 2026 | N/A | N/A | N/A | N/A | N/A |
| 2025 | $2,431,690 | $789,500 | $0 | $3,221,190 | $3,221,190 |
| 2024 | $2,316,510 | $875,870 | $0 | $3,192,380 | $3,192,380 |
| 2023 | $2,316,510 | $875,870 | $0 | $3,192,380 | $3,192,380 |
| 2022 | $2,316,510 | $770,760 | $0 | $3,087,270 | $3,087,270 |
Deed and Sales History
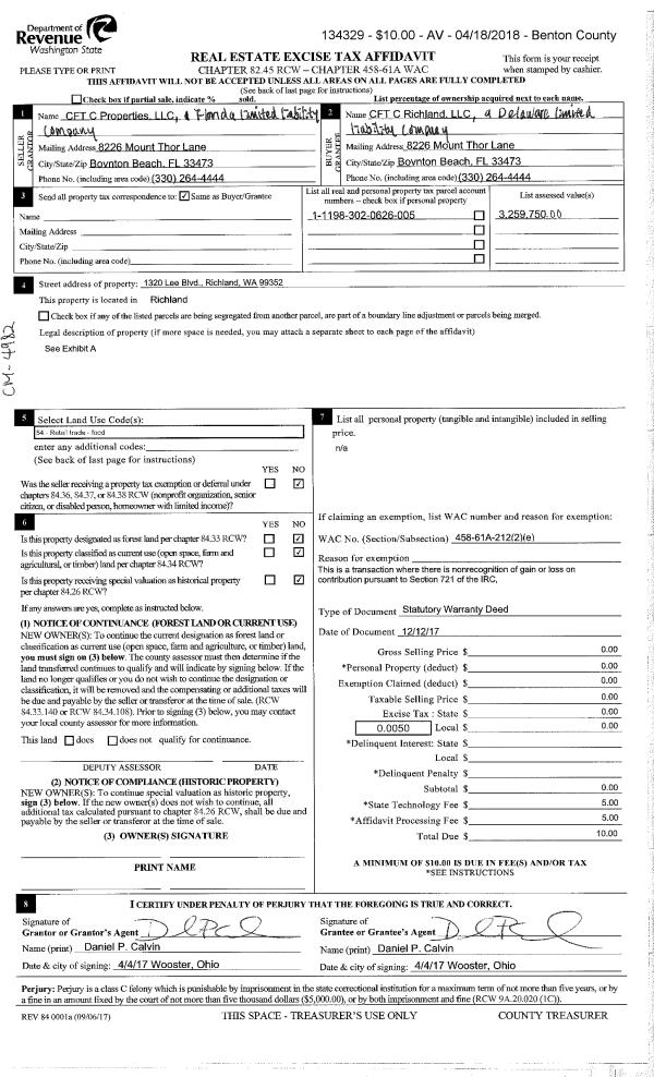
| 1 | 12/12/2017 | SWD | Statutory Warranty Deed | CFT C PROPERTIES LLC | CFT C RICHLAND LLC | 2018-010922 | | $0.00 | 134329 | |
| 2 | 11/26/2010 | WD | Warranty Deed | CUSHMAN FAMILY TRUST, | CFT C PROPERTIES LLC | 2010-038452 | 10K06203 | $0.00 | 0 | 63537 |
| 3 | 05/11/1987 | HDeed | Historical Deed | CUSHMAN FAMILY TRUST C | UNKNOWN | | 198701642 | $0.00 | 0 | |
| 4 | 05/10/1965 | HDeed | Historical Deed | CUSHMAN, RODERICK H ET UX | UNKNOWN | | | $0.00 | 0 | |
| 5 | 05/03/1965 | HDeed | Historical Deed | CHELTENHAM PROPERTIES INC | UNKNOWN | | | $0.00 | 0 | |
Payout Agreement
| No payout information available.. |