Property
Account |
| Property ID: | 41440 | Abbreviated Legal Description: | PLAT OF RICHLAND BLOCK 547 LOT 10 ALSO EAST 3 FEET OF NORTH 70 FEET OF LOT 9 (DESCRIPTION CHANGE 4-8-59). SUBJECT TO EASEMENTS & RESTRIC- TION OF RECORD. |
| Parcel # / Geo ID: | 114981020547010 | Agent Code: | |
| Type: | Real | | |
| Tax Area: | R1 - R1 | Land Use Code | 11 |
| Open Space: | N | DFL | N |
| Historic Property: | N | Remodel Property: | N |
| Multi-Family Redevelopment: | N | | |
| Township: | 09 | Section: | 14 |
| Range: | 28 | Legal Acres: | 0.1619 |
Location |
| Address: | 205 FALLEY ST RICHLAND, WA 99352 | Mapsco: | |
| Neighborhood: | 160011 - South Historic Richland 1,001 - 1,500 sf | Map ID: | |
| Neighborhood CD: | 160011 901 |
Owner |
| Name: | HEWITT CARSON & TEAL BLOCK | Owner ID: | 476902 |
| Mailing Address: | 205 FALLEY ST RICHLAND, WA 99352 | % Ownership: | 100.0000000000% |
| | | Exemptions: | |
Pay Tax Due
There is currently No Amount Due on this property.
Taxes and Assessment Details
Property Tax Information as of
11/01/2025
Click on "Statement Details" to expand or collapse a tax statement.
* Please enter a valid date ** Please enter a valid date *
Statement Details |
| 2025 | 26117 | CITR - CITY OF RICHLAND | $330.02 | $330.02 | $0.00 | $0.00 | $660.04 | $0.00 |
| 2025 | 26117 | CTYGEN - COUNTY BENTON | $136.65 | $136.65 | $0.00 | $0.00 | $273.30 | $0.00 |
| 2025 | 26117 | PRTB - PORT OF BENTON | $53.11 | $53.11 | $0.00 | $0.00 | $106.22 | $0.00 |
| 2025 | 26117 | SCH400 - RICHLAND SD 400 | $688.54 | $688.52 | $0.00 | $0.00 | $1377.06 | $0.00 |
| 2025 | 26117 | STATE - STATE SCHOOL | $394.69 | $394.68 | $0.00 | $0.00 | $789.37 | $0.00 |
| 2025 | 26117 | BCD - BENTON CONSERVATION DISTRICT | $2.51 | $2.51 | $0.00 | $0.00 | $5.02 | $0.00 |
| 2025 | 26117 | HORT - HORTICULTURAL PEST AND DISEASE CONTROL | $0.75 | $0.75 | $0.00 | $0.00 | $1.50 | $0.00 |
| 2025 | 26117 | MOSBEN - MOSQUITO | $18.27 | $18.26 | $0.00 | $0.00 | $36.53 | $0.00 |
| 2025 | 26117 | WEDBEN - NOXIOUS WEED CONTROL BOARD | $2.50 | $2.50 | $0.00 | $0.00 | $5.00 | $0.00 |
| 2025 | 26117 | TOTAL: | $1627.04 | $1627.00 | $0.00 | $0.00 | $3254.04 | $0.00 |
|
| 2025 | 26117 | $1627.04 | $1627.00 | $0.00 | $0.00 | $3254.04 | $0.00 |
Statement Details |
| 2024 | 26167 | CITR - CITY OF RICHLAND | $271.27 | $271.25 | $0.00 | $0.00 | $542.52 | $0.00 |
| 2024 | 26167 | CTYGEN - COUNTY BENTON | $115.06 | $115.04 | $0.00 | $0.00 | $230.10 | $0.00 |
| 2024 | 26167 | PRTB - PORT OF BENTON | $42.97 | $42.97 | $0.00 | $0.00 | $85.94 | $0.00 |
| 2024 | 26167 | SCH400 - RICHLAND SD 400 | $567.62 | $567.60 | $0.00 | $0.00 | $1135.22 | $0.00 |
| 2024 | 26167 | STATE - STATE SCHOOL | $312.20 | $312.20 | $0.00 | $0.00 | $624.40 | $0.00 |
| 2024 | 26167 | BCD - BENTON CONSERVATION DISTRICT | $1.76 | $1.75 | $0.00 | $0.00 | $3.51 | $0.00 |
| 2024 | 26167 | HORT - HORTICULTURAL PEST AND DISEASE CONTROL | $0.75 | $0.75 | $0.00 | $0.00 | $1.50 | $0.00 |
| 2024 | 26167 | MOSBEN - MOSQUITO | $18.12 | $18.12 | $0.00 | $0.00 | $36.24 | $0.00 |
| 2024 | 26167 | WEDBEN - NOXIOUS WEED CONTROL BOARD | $2.50 | $2.50 | $0.00 | $0.00 | $5.00 | $0.00 |
| 2024 | 26167 | DLQ NOTICE - DELINQUENCY AVOIDANCE COST | $10.00 | $0.00 | $0.00 | $0.00 | $10.00 | $0.00 |
| 2024 | 26167 | TOTAL: | $1342.25 | $1332.18 | $0.00 | $0.00 | $2674.43 | $0.00 |
|
| 2024 | 26167 | $1342.25 | $1332.18 | $0.00 | $0.00 | $2674.43 | $0.00 |
Values
| (+) Improvement Homesite Value: | + | $0 | |
| (+) Improvement Non-Homesite Value: | + | $298,040 | |
| (+) Land Homesite Value: | + | $50,000 | |
| (+) Land Non-Homesite Value: | + | $0 | |
| (+) Curr Use (HS): | + | $0 | $0 |
| (+) Curr Use (NHS): | + | $0 | $0 |
| | | -------------------------- | |
| (=) Market Value: | = | $348,040 | |
| (–) Productivity Loss: | – | $0 | |
| | | -------------------------- | |
| (=) Subtotal: | = | $348,040 | |
| (+) Senior Appraised Value: | + | $0 | |
| (+) Non-Senior Appraised Value: | + | $348,040 | |
| | | -------------------------- | |
| (=) Total Appraised Value: | = | $348,040 | |
| (–) Senior Exemption Loss: | – | $0 | |
| (–) Exemption Loss: | – | $0 | |
| | | -------------------------- | |
| (=) Taxable Value: | = | $348,040 | |
Taxing Jurisdiction
| Owner: | HEWITT CARSON & TEAL BLOCK | | |
| % Ownership: | 100.0000000000% | | |
| Total Value: | $348,040 | | |
| Tax Area: | R1 - R1 |
| RICH | RICHLAND | 1.7581796528 | $348,040 | $348,040 | $611.92 | | |
| RICHLIB | RICHLAND LIBRARY DEBT SERVICE | 0.1382492291 | $348,040 | $348,040 | $48.12 | | |
| CNYHMNSVCS | COUNTY HUMAN SERVICES | 0.0250000001 | $348,040 | $348,040 | $8.70 | | |
| CNYVET | COUNTY VETERANS | 0.0112500001 | $348,040 | $348,040 | $3.92 | | |
| COUNTY | COUNTY | 0.7490000524 | $348,040 | $348,040 | $260.68 | | |
| PORTBNT | PORT OF BENTON | 0.3051815336 | $348,040 | $348,040 | $106.22 | | |
| SD400 | SCHOOL DIST 400 DEBT SERVICE | 1.1749453353 | $348,040 | $348,040 | $408.93 | | |
| SD400CP | SCHOOL DIST 400 CAPITAL PROJECTS | 0.6784430599 | $348,040 | $348,040 | $236.13 | | |
| SD400MO | SCHOOL DIST 400 ENRICHMENT | 2.1032036108 | $348,040 | $348,040 | $732.00 | | |
| STATE | STATE SCHOOL | 1.4743934020 | $348,040 | $348,040 | $513.15 | | |
| STATE2 | STATE SCHOOL PART 2 | 0.7936316745 | $348,040 | $348,040 | $276.22 | | |
| | Total Tax Rate: | 9.2114775506 | | | | | |
| | | | | Taxes w/Current Exemptions: | $3,205.99 | | |
| | | | | Taxes w/o Exemptions: | $3,205.99 | | |
Improvement / Building
| Improvement #1: | RESIDENTIAL BLDGS | State Code: | 520 | 1236.0 sqft | Value: | $281,310 |
| Exterior Wall: | Asbestos | Fireplace: | FIREPLACE | | Fixture Count: | Count | Foundation: | Crawl/Concrete Perimeter Piers | | Full Bathrooms: | Count | HVAC: | Heat pump | | Number of Bedrooms: | Count | Roof Covering: | Comp Shingle |
|
| | Type | Description | Class CD | Sub Class CD | Year Built | Area |
| | MA-Gov | Main Area - Government Home | 30 | | 1944 | 1236.0 |
| | Carport | Carport | 30 | | 1944 | 408.0 |
| | BSMT | Basement | 30 | | 1944 | 624.0 |
| | CovPatio | Covered Patio | 30 | | 1944 | 68.0 |
| | EncPorch | Enclosed Porch | 30 | | 1944 | 12.0 |
| Improvement #2: | RESIDENTIAL BLDGS | State Code: | 520 | 0.0 sqft | Value: | $16,730 |
Property Image
Land
| 1 | 9 | Homesite | 0.1619 | 7054.00 | 0.00 | 0.00 | 1.00 | $50,000 | $0 |
Roll Value History
| 2026 | N/A | N/A | N/A | N/A | N/A |
| 2025 | $330,440 | $50,000 | $0 | $380,440 | $380,440 |
| 2024 | $298,040 | $50,000 | $0 | $348,040 | $348,040 |
| 2023 | $232,830 | $50,000 | $0 | $282,830 | $282,830 |
| 2022 | $189,510 | $50,000 | $0 | $239,510 | $239,510 |
Deed and Sales History
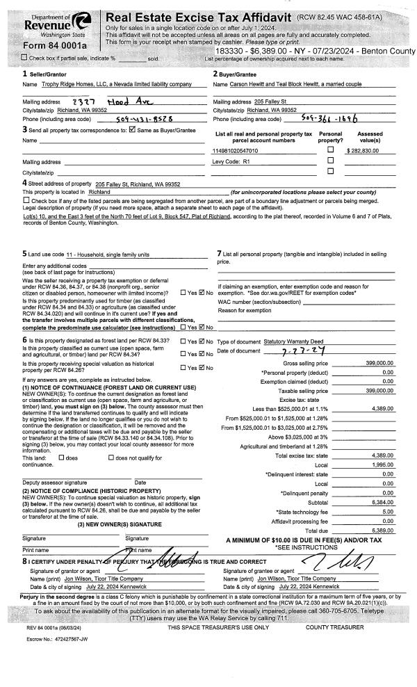
| 1 | 07/23/2024 | SWD | Statutory Warranty Deed | TROPHY RIDGE HOMES LLC | HEWITT CARSON & TEAL BLOCK | 2024-015352 | | $399,000.00 | 183330 | |
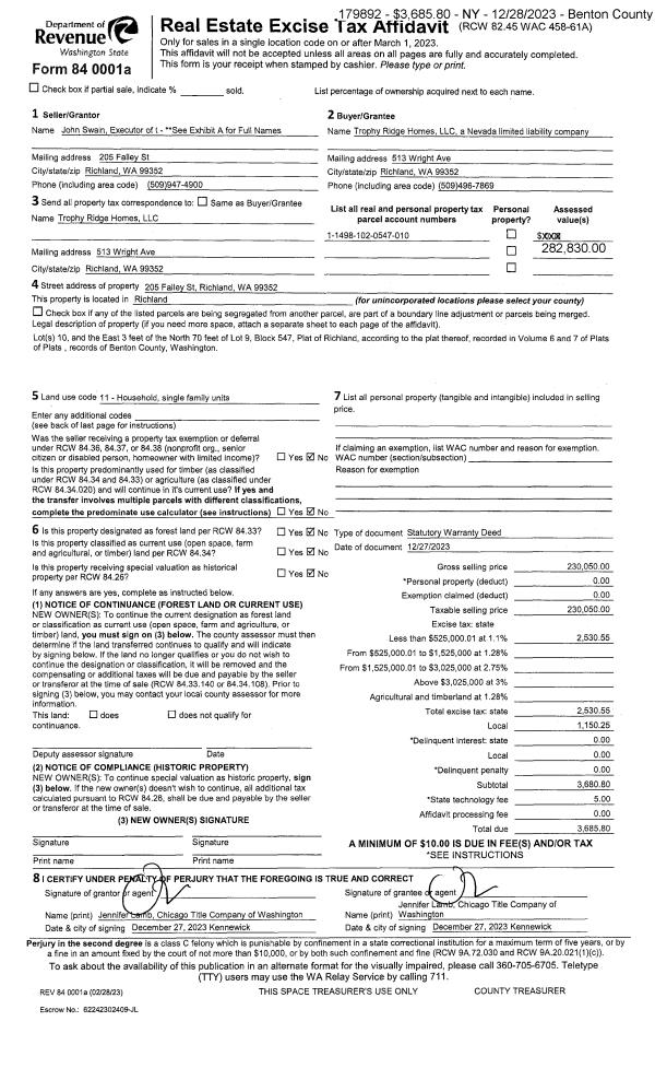
| 2 | 12/27/2023 | SWD | Statutory Warranty Deed | DU VON DONALD L & ET UX | TROPHY RIDGE HOMES LLC | 2023-027081 | | $230,050.00 | 179892 | |
| 3 | 02/09/1962 | HDeed | Historical Deed | DU VON, DONALD L ET UX | UNKNOWN | | | $13,950.00 | 0 | |
| 4 | 07/08/1958 | HDeed | Historical Deed | MORTON, DAVID C ET UX | UNKNOWN | | | $0.00 | 0 | |
| 5 | 07/08/1958 | HDeed | Historical Deed | STINE, ALLEN P ET UX | UNKNOWN | | | $0.00 | 0 | |
| 6 | 04/25/1956 | HDeed | Historical Deed | U S GOVERNMENT | UNKNOWN | | | $0.00 | 0 | |
Payout Agreement
| No payout information available.. |