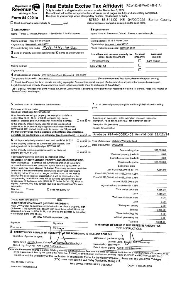
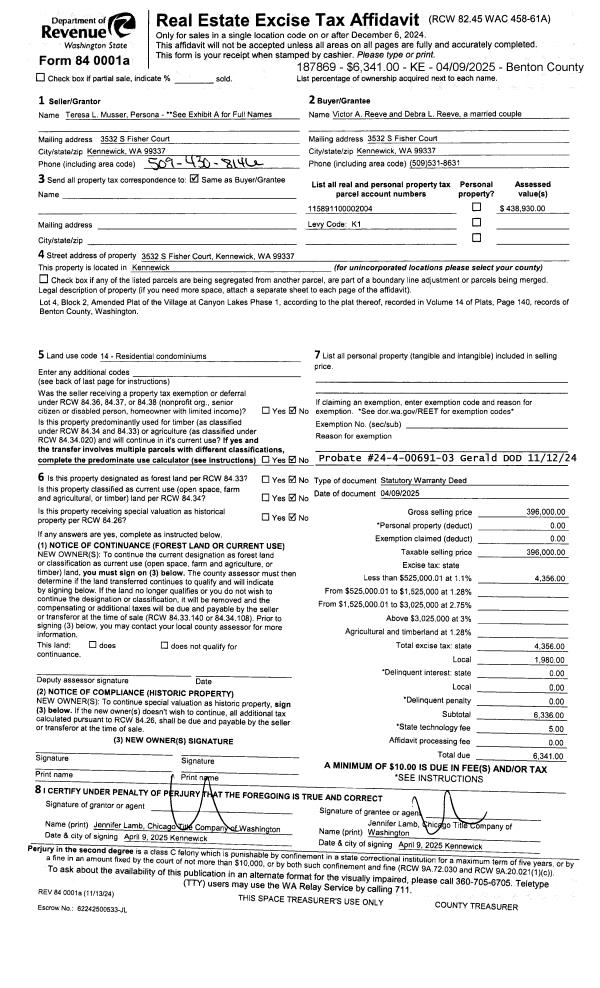
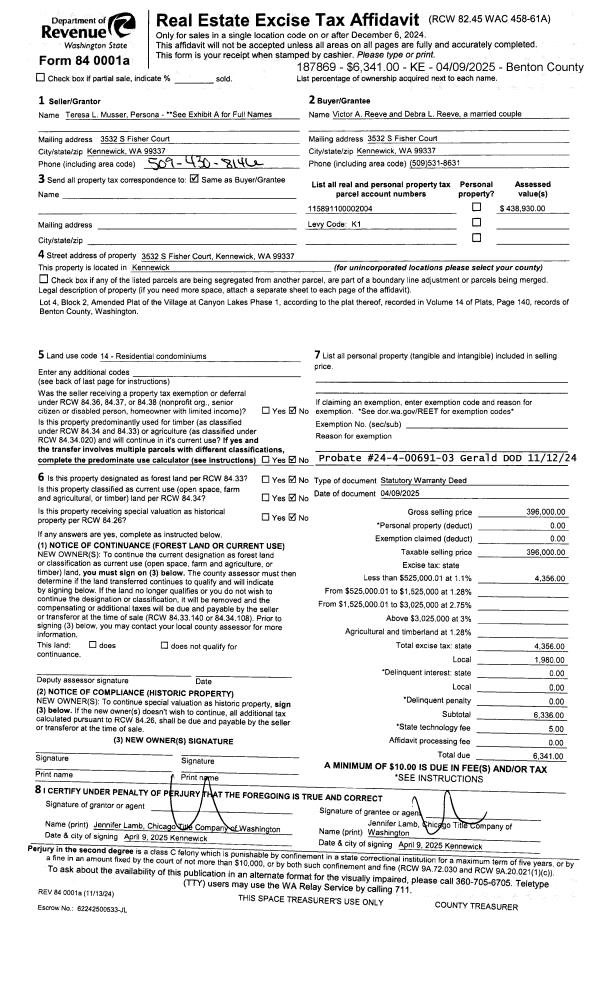
| 1 | 04/09/2025 | SWD | Statutory Warranty Deed | VANZUYEN GERALD W & MARJORIE A | REEVE VICTOR A & DEBRA L | 2025-007582 | | $396,000.00 | 187869 | |
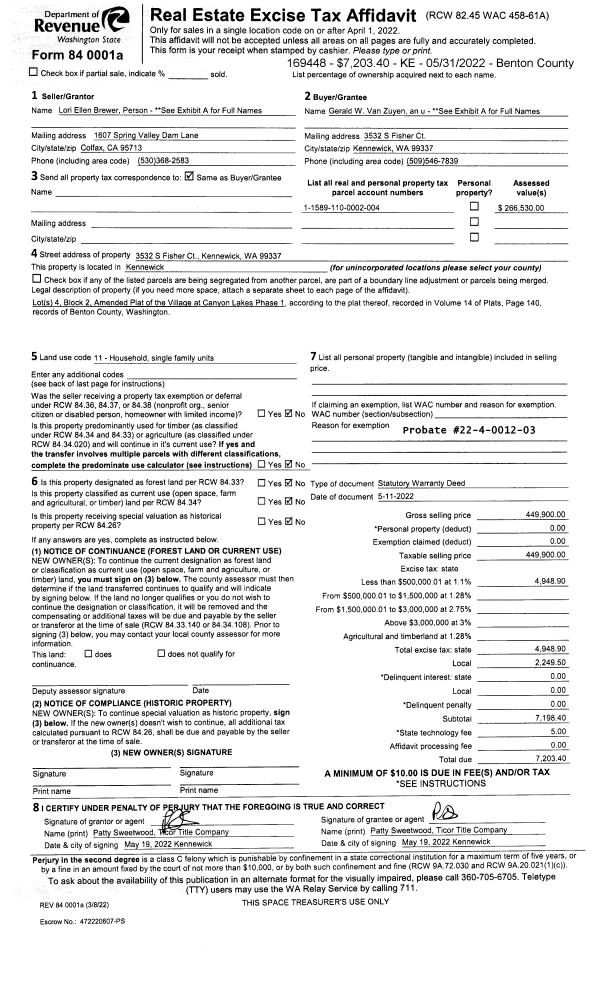
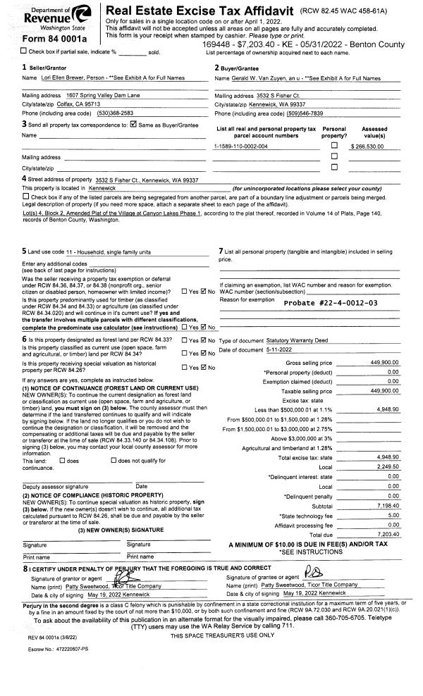
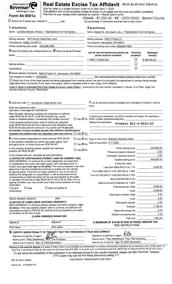
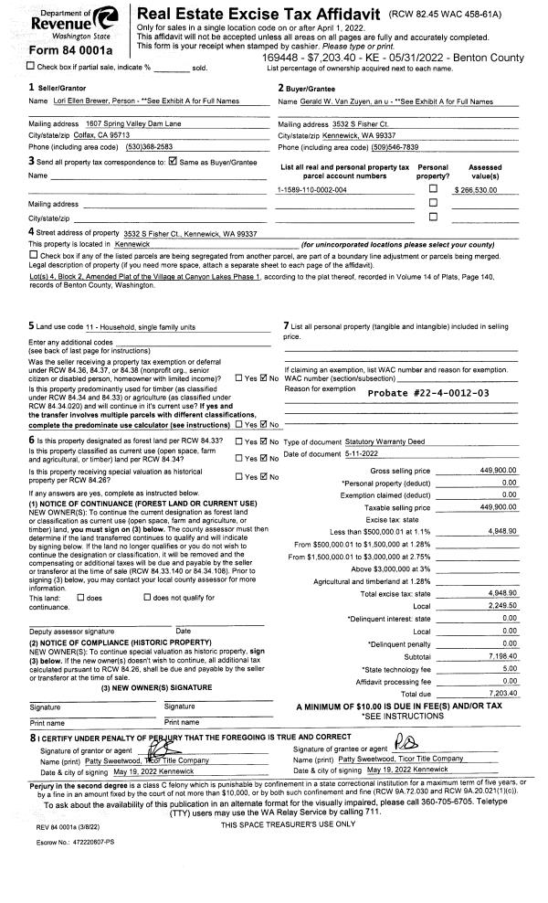
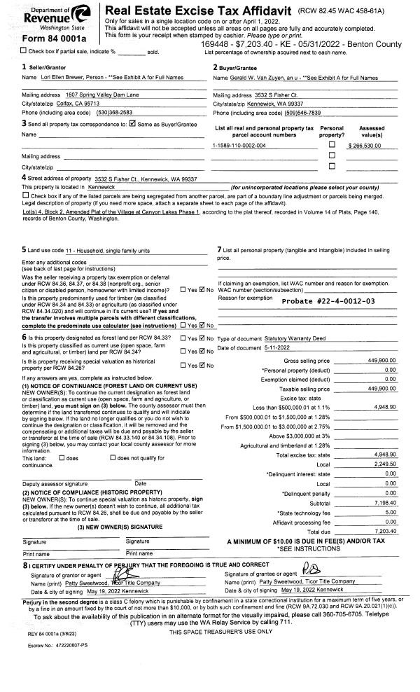
| 2 | 05/11/2022 | SWD | Statutory Warranty Deed | CARR GARY D | VANZUYEN GERALD W & MARJORIE A | 2022-018355 | | $449,900.00 | 169448 | |
| 3 | 06/14/2013 | SWD | Statutory Warranty Deed | BIERSNER, E DONALD & JANE M | CARR GARY D | 2013-020846 | 13K02816 | $195,500.00 | 0 | 78379 |
| 4 | 04/11/2012 | SWD | Statutory Warranty Deed | LEAKE TRUSTEE, WILSON W & JEWEL M | BIERSNER E DONALD & JANE M | 2012-010948 | 12K01411 | $195,500.00 | 0 | 70926 |
| 5 | 06/09/2005 | QCD | Quit Claim Deed | LEAKE, WILSON W & JEWEL M | LEAKE TRUSTEE WILSON W & JEWEL M | 2005-020183 | 05K03666 | $0.00 | 0 | 24151 |
| 6 | 12/16/2003 | SWD | Statutory Warranty Deed | GABRIEL, ERNEST J & FRANCES L | LEAKE WILSON W & JEWEL M | 2003-060887 | 03K07443 | $170,000.00 | 0 | 12411 |
| 7 | 08/23/2002 | SWD | Statutory Warranty Deed | LUNA, CONSTANCE D | GABRIEL ERNEST J & FRANCES L | 2002-034393 | 02K05180 | $170,000.00 | 0 | 3023 |
| 8 | 08/09/1993 | HDeed | Historical Deed | LUNA,CONSTANCE D | UNKNOWN | | 199304028 | $174,995.00 | 0 | |
| 9 | 09/17/1992 | HDeed | Historical Deed | VILLAGE CREATORS CANYON LAKES | UNKNOWN | | 199204588 | $350,000.00 | 0 | |
| 10 | 03/07/1990 | HDeed | Historical Deed | PETERSON,ROY S-MARJORIE | UNKNOWN | | 199000965 | $100,000.00 | 0 | |
| 11 | 01/02/1986 | HDeed | Historical Deed | SEATTLE-FIRST NATIONAL BANK | UNKNOWN | | 198600019 | $0.00 | 0 | |
| 12 | 08/05/1983 | HDeed | Historical Deed | CANYON LAKES PARTNERSHIP | UNKNOWN | | 1983005872 | $0.00 | 0 | |
| 13 | 07/14/1977 | HDeed | Historical Deed | THOMPSON, HAROLD N-ARLENE | UNKNOWN | | 197768935 | $0.00 | 0 | |