Property
Account |
| Property ID: | 44097 | Abbreviated Legal Description: | PLAT OF RICHLAND BLOCK 135 LOT 24 SUBJECT TO EASEMENTS & RESTRICTION OF RECORD. |
| Parcel # / Geo ID: | 115981020135024 | Agent Code: | |
| Type: | Real | | |
| Tax Area: | R1 - R1 | Land Use Code | 11 |
| Open Space: | N | DFL | N |
| Historic Property: | N | Remodel Property: | N |
| Multi-Family Redevelopment: | N | | |
| Township: | 09 | Section: | 15 |
| Range: | 28 | Legal Acres: | 0.1388 |
Location |
| Address: | 303 ROSSELL AVE RICHLAND, WA 99352-3932 | Mapsco: | |
| Neighborhood: | 160009 - Central Historic Richland 101 - 1,000 sf | Map ID: | |
| Neighborhood CD: | 160009 900 |
Owner |
| Name: | STENERSEN RAYMOND MARCUS | Owner ID: | 479557 |
| Mailing Address: | 303 ROSSELL AVE RICHLAND, WA 99352 | % Ownership: | 100.0000000000% |
| | | Exemptions: | |
Pay Tax Due
Select the appropriate checkbox next to the year to be paid. Multiple years may be selected.
*Convenience Fee not included
Taxes and Assessment Details
Property Tax Information as of
01/24/2026
Click on "Statement Details" to expand or collapse a tax statement.
Statement Details |
| 2026 | 28152 | CITR - CITY OF RICHLAND | $316.17 | $316.16 | $0.00 | $0.00 | $0.00 | $632.33 |
| 2026 | 28152 | CTYGEN - COUNTY BENTON | $130.17 | $130.14 | $0.00 | $0.00 | $0.00 | $260.31 |
| 2026 | 28152 | PRTB - PORT OF BENTON | $41.27 | $41.26 | $0.00 | $0.00 | $0.00 | $82.53 |
| 2026 | 28152 | SCH400 - RICHLAND SD 400 | $656.51 | $656.49 | $0.00 | $0.00 | $0.00 | $1313.00 |
| 2026 | 28152 | STATE - STATE SCHOOL | $369.05 | $369.04 | $0.00 | $0.00 | $0.00 | $738.09 |
| 2026 | 28152 | BCD - BENTON CONSERVATION DISTRICT | $2.51 | $2.50 | $0.00 | $0.00 | $0.00 | $5.01 |
| 2026 | 28152 | HORT - HORTICULTURAL PEST AND DISEASE CONTROL | $0.75 | $0.75 | $0.00 | $0.00 | $0.00 | $1.50 |
| 2026 | 28152 | MOSBEN - MOSQUITO | $17.63 | $17.63 | $0.00 | $0.00 | $0.00 | $35.26 |
| 2026 | 28152 | WEDBEN - NOXIOUS WEED CONTROL BOARD | $2.50 | $2.50 | $0.00 | $0.00 | $0.00 | $5.00 |
| 2026 | 28152 | TOTAL: | $1536.56 | $1536.47 | $0.00 | $0.00 | $0.00 | $3073.03 |
|
| 2026 | 28152 | $1536.56 | $1536.47 | $0.00 | $0.00 | $0.00 | $3073.03 |
Statement Details |
| 2025 | 28218 | CITR - CITY OF RICHLAND | $304.91 | $304.91 | $0.00 | $0.00 | $609.82 | $0.00 |
| 2025 | 28218 | CTYGEN - COUNTY BENTON | $126.26 | $126.25 | $0.00 | $0.00 | $252.51 | $0.00 |
| 2025 | 28218 | PRTB - PORT OF BENTON | $49.07 | $49.06 | $0.00 | $0.00 | $98.13 | $0.00 |
| 2025 | 28218 | SCH400 - RICHLAND SD 400 | $636.15 | $636.14 | $0.00 | $0.00 | $1272.29 | $0.00 |
| 2025 | 28218 | STATE - STATE SCHOOL | $364.66 | $364.65 | $0.00 | $0.00 | $729.31 | $0.00 |
| 2025 | 28218 | BCD - BENTON CONSERVATION DISTRICT | $2.51 | $2.50 | $0.00 | $0.00 | $5.01 | $0.00 |
| 2025 | 28218 | HORT - HORTICULTURAL PEST AND DISEASE CONTROL | $0.75 | $0.75 | $0.00 | $0.00 | $1.50 | $0.00 |
| 2025 | 28218 | MOSBEN - MOSQUITO | $17.80 | $17.80 | $0.00 | $0.00 | $35.60 | $0.00 |
| 2025 | 28218 | WEDBEN - NOXIOUS WEED CONTROL BOARD | $2.50 | $2.50 | $0.00 | $0.00 | $5.00 | $0.00 |
| 2025 | 28218 | TOTAL: | $1504.61 | $1504.56 | $0.00 | $0.00 | $3009.17 | $0.00 |
|
| 2025 | 28218 | $1504.61 | $1504.56 | $0.00 | $0.00 | $3009.17 | $0.00 |
Values
| (+) Improvement Homesite Value: | + | $0 | |
| (+) Improvement Non-Homesite Value: | + | $218,070 | |
| (+) Land Homesite Value: | + | $50,000 | |
| (+) Land Non-Homesite Value: | + | $0 | |
| (+) Curr Use (HS): | + | $0 | $0 |
| (+) Curr Use (NHS): | + | $0 | $0 |
| | | -------------------------- | |
| (=) Market Value: | = | $268,070 | |
| (–) Productivity Loss: | – | $0 | |
| | | -------------------------- | |
| (=) Subtotal: | = | $268,070 | |
| (+) Senior Appraised Value: | + | $0 | |
| (+) Non-Senior Appraised Value: | + | $268,070 | |
| | | -------------------------- | |
| (=) Total Appraised Value: | = | $268,070 | |
| (–) Senior Exemption Loss: | – | $0 | |
| (–) Exemption Loss: | – | $0 | |
| | | -------------------------- | |
| (=) Taxable Value: | = | $268,070 | |
Taxing Jurisdiction
| Owner: | STENERSEN RAYMOND MARCUS | | |
| % Ownership: | 100.0000000000% | | |
| Total Value: | $268,070 | | |
| Tax Area: | R1 - R1 |
| RICH | RICHLAND | 2.0181047376 | $268,070 | $268,070 | $540.99 | | |
| RICHLIB | RICHLAND LIBRARY DEBT SERVICE | 0.1552429019 | $268,070 | $268,070 | $41.62 | | |
| CNYHMNSVCS | COUNTY HUMAN SERVICES | 0.0250000001 | $268,070 | $268,070 | $6.70 | | |
| CNYVET | COUNTY VETERANS | 0.0112499999 | $268,070 | $268,070 | $3.02 | | |
| COUNTY | COUNTY | 0.9007089219 | $268,070 | $268,070 | $241.45 | | |
| PORTBNT | PORT OF BENTON | 0.3316790761 | $268,070 | $268,070 | $88.91 | | |
| PTBNT11AB | PORT OF BENTON 2011 A & B BOND | 0.0000000000 | $268,070 | $268,070 | $0.00 | | |
| SD400 | SCHOOL DIST 400 DEBT SERVICE | 1.4212967738 | $268,070 | $268,070 | $381.01 | | |
| SD400CP | SCHOOL DIST 400 CAPITAL PROJECTS | 0.4701918332 | $268,070 | $268,070 | $126.04 | | |
| SD400MO | SCHOOL DIST 400 ENRICHMENT | 2.3509592485 | $268,070 | $268,070 | $630.22 | | |
| STATE | STATE SCHOOL | 1.4169238836 | $268,070 | $268,070 | $379.83 | | |
| STATE2 | STATE SCHOOL PART 2 | 0.7571640106 | $268,070 | $268,070 | $202.97 | | |
| | Total Tax Rate: | 9.8585213872 | | | | | |
| | | | | Taxes w/Current Exemptions: | $2,642.76 | | |
| | | | | Taxes w/o Exemptions: | $2,642.76 | | |
Improvement / Building
| Improvement #1: | RESIDENTIAL BLDGS | State Code: | 520 | 864.0 sqft | Value: | $218,070 |
| Exterior Wall: | Hardboard | Fixture Count: | Count | | Foundation: | Crawl/Concrete Perimeter Piers | Full Bathrooms: | Count | | HVAC: | Central heat/cooling | Number of Bedrooms: | Count | | Roof Covering: | Comp Shingle |   |   |
|
| | Type | Description | Class CD | Sub Class CD | Year Built | Area |
| | MA-Gov | Main Area - Government Home | 30 | | 1948 | 864.0 |
| | BSMT | Basement | 30 | | 1948 | 864.0 |
| | CovPatio | Covered Patio | 30 | | 1948 | 144.0 |
| | Carport | Carport | 30 | | 1948 | 198.0 |
Property Image
Land
| 1 | 9 | Homesite | 0.1388 | 6050.00 | 5.00 | 0.00 | 1.00 | $50,000 | $0 |
Roll Value History
| 2026 | N/A | N/A | N/A | N/A | N/A |
| 2025 | $288,960 | $50,000 | $0 | $338,960 | $338,960 |
| 2024 | $271,560 | $50,000 | $0 | $321,560 | $321,560 |
| 2023 | $242,760 | $50,000 | $0 | $292,760 | $292,760 |
| 2022 | $218,070 | $50,000 | $0 | $268,070 | $268,070 |
Deed and Sales History
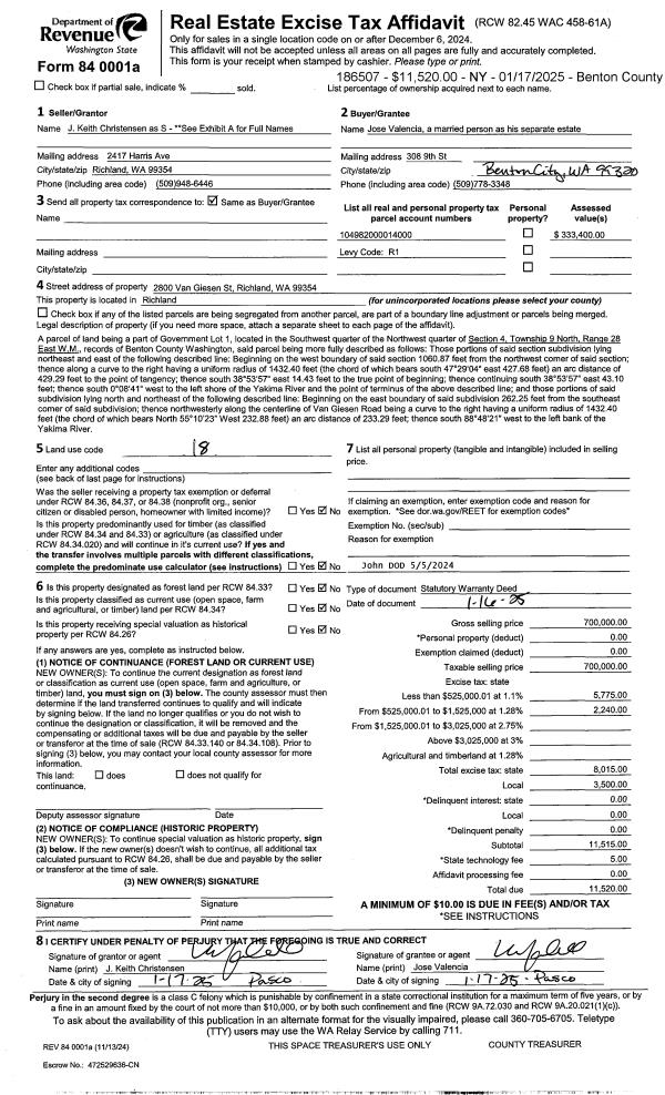
| 1 | 11/22/2024 | QCD | Quit Claim Deed | STENERSEN ALENA | STENERSEN RAYMOND MARCUS | 2024-025951 | | $0.00 | 185658 | |
| 2 | 11/15/2024 | SWD | Statutory Warranty Deed | HAZEN TUCKER J | STENERSEN RAYMOND M | 2024-025950 | | $319,000.00 | 185657 | |
| 3 | 11/16/2021 | SWD | Statutory Warranty Deed | CROSKREY MICHAEL | HAZEN TUCKER J | 2021-053098 | | $268,500.00 | 165012 | |
| 4 | 09/21/2015 | SWD | Statutory Warranty Deed | JONES, ROSEMARIE | CROSKREY MICHAEL | 2015-028825 | 15K05274 | $113,500.00 | 0 | 93643 |
| 5 | 02/25/2014 | QCD | Quit Claim Deed | POWELL, EDWARD E & LOIS | JONES ROSEMARIE | 2014-006456 | 14K01088 | $0.00 | 0 | 83120 |
| 6 | 07/28/1958 | HDeed | Historical Deed | POWELL,EDWARD E ET UX | UNKNOWN | | 1958 | $0.00 | 0 | |
Payout Agreement
| No payout information available.. |